Мой син живее в покривно пространство. Там изложение - юг и слънце пече. Монтиран е "слънчев" панел и ползва бойлер 120 литра на Елдоминвест с 2 серпентини и нагревател 3 кW. Обаче според негова информация моето мнение е, че с монофазен проточен бойлер не винаги може да се разчита на слънчевата система, че ще подгрее водата с подходяща Т за дозатопляне от проточния бойлер, за да се получи необходим дебит с желана Т. За това съвета е обемен бойлер със серпентина.
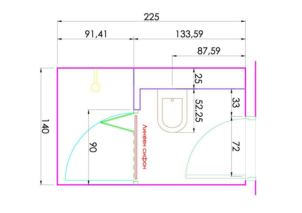
А ето аз как си представям нещата, но нещо ми не излиза размера за мивката

Баня 225-140_1.jpg (75.69 KиБ) Видяна 2806 пъти
А да за мивката подсилено окачване или мивка-шкаф с крака.
А ето аз как си представям нещата, но нещо ми не излиза размера за мивката
Прикачен файл:
Баня 225-140_1.jpg (75.69 KиБ) Видяна 2806 пъти
А да за мивката подсилено окачване или мивка-шкаф с крака.
