Здравейте колеги,
Предстои ми, на пролет иззиждането и изолирането на моята къща.
По предварителни сметки излезе, че консумираната енергия за отопление на къщата при разлика в температурите от 30 градуса, (т.е. вътре 20 вънка - 10) е 3640.8 вата.
Къщата смятам да се иззида с блокчета Полибетон топлопроводимост 0.081 W/mK, дебелина 30 см, коефицент на топлопроводимост К = 0.254 W/m2K.
Дограмите на които съм се спрял са с К = 0.8 W/m2K.
Загуби към покрива 386 вата. Стоманобетонна плоча с 20 см вата, К = 0.161 W/m2K.
Искам да попитам възможно ли е наистина отоплението на една къща да е под 4 киловата? И ако да, какъв тип нискотемпературна инсталация да се избере? Конвектори, подово или панелни радиатори?
С каква мощност трябва да се избере термо-помпата например?
И въпрос породен ми в последния момент от дискусията на колегата Антон, как би се охлаждала подобна къща и колко енергия ще е необходима за охлаждането й?
За да изясня изцяло какво представлява къщата качвам и скици от архитектурния план.
Предстои ми, на пролет иззиждането и изолирането на моята къща.
По предварителни сметки излезе, че консумираната енергия за отопление на къщата при разлика в температурите от 30 градуса, (т.е. вътре 20 вънка - 10) е 3640.8 вата.
Къщата смятам да се иззида с блокчета Полибетон топлопроводимост 0.081 W/mK, дебелина 30 см, коефицент на топлопроводимост К = 0.254 W/m2K.
Дограмите на които съм се спрял са с К = 0.8 W/m2K.
Загуби към покрива 386 вата. Стоманобетонна плоча с 20 см вата, К = 0.161 W/m2K.
Искам да попитам възможно ли е наистина отоплението на една къща да е под 4 киловата? И ако да, какъв тип нискотемпературна инсталация да се избере? Конвектори, подово или панелни радиатори?
С каква мощност трябва да се избере термо-помпата например?
И въпрос породен ми в последния момент от дискусията на колегата Антон, как би се охлаждала подобна къща и колко енергия ще е необходима за охлаждането й?
За да изясня изцяло какво представлява къщата качвам и скици от архитектурния план.
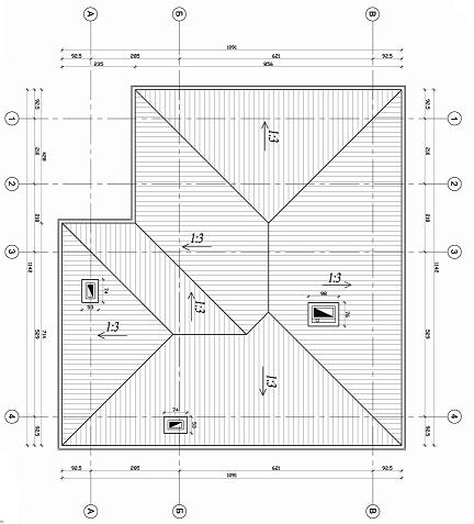
Прикачен файл
Покрив
d4.JPG (37.26 KиБ) Видяна 29417 пъти
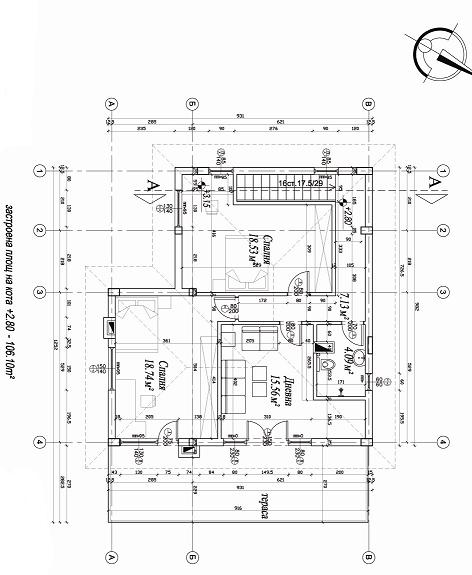
Прикачен файл
Втори жилищен етаж
d3.JPG (43.27 KиБ) Видяна 29417 пъти
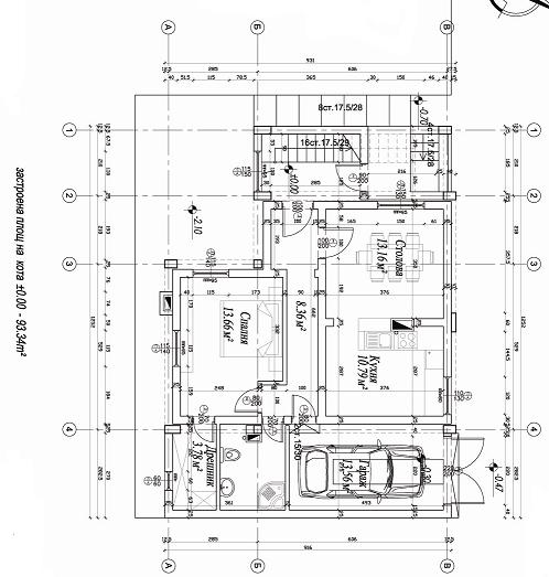
Прикачен файл
Първи жилищен етаж
d2.JPG (46.73 KиБ) Видяна 29417 пъти
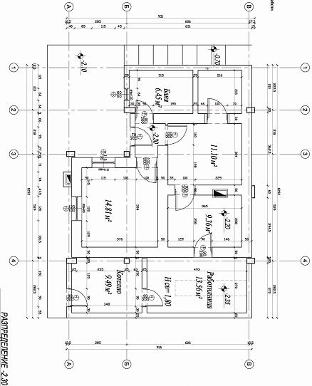
Прикачен файл
Приземен етаж.
d1.JPG (39.91 KиБ) Видяна 29417 пъти
