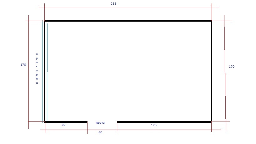
Здравейте на всички!!!Мисля да преградя терасата и да направя там детска стая,проблема е,че стаята ще е доста малка и се чудя дали въобще да я правя затова ви моля за съвет.Ще кача снимка с нейните размерите и ако е възможно помагайте с разположение на мебели легло,гардероб и бюро и съвет разбира се.Благодаря ви предварително
Прикачен файл
детска стая.jpg (26.6 KиБ) Видяна 7581 пъти

