• 1
  • 2
Мечтата на всяка домакиня
ivanvasilev1970 - специалист
Здравейте,
Искам да благодаря на всички за споделените съвети и мнения в досегашните ми теми.
След дълго лутане накрая се получиха 4 варианти, от които трябва да изберем един.
Ще направя кратко предствяне на всеки един от вариантите и ще ви помоля за съвет кой да избера.

Вариант 1: Котлони до колона, долен глух шкаф:
Прикачен файл:
2012_03_09_V_DG_KK.JPG
Вариант 2: Котлони до колона, долен ъглов шкаф:
Прикачен файл:
2012_03_09_V_DY_KK.JPG
"+" и "-" на вариант 1 и 2
„+“ кратко разстояние от аспиратора до комина
„+“ фурната е на по-високо ниво
„-„ нарушаване на разположението на зоните за сухранение, зона за миене, зона за готвене

Всичко щеше да бъде сравнително просто , ако не се бяха появили и следвашите два варианта. Те са с размяна на местата на котлоните и мивката:

Вариант 3: Котлони до прозореца, долен глух шкаф:
Прикачен файл:
2012_03_09_V_DG_KP.JPG
Вариант 4: Котлони до прозореца, долен ъглов шкаф:
Прикачен файл:
2012_03_09_V_DY_KP.JPG
"+" и "-" на вариант 3 и 4
„+“ перфектно разположение на зоните за съхранение, зона за миене, зона за готвене
„-“ фурната е на по-ниско ниво
„-“ удължаване на пътя от аспиратора до комина (два 90 градусовин завоя и трасе от 3 м и 30 см)

Та моля да ме посъветвате!!! Относно вариантите 3 и 4...харесва ми това, че разположението на зоните се оптимизира, но имам две основни питанки-проблем ли е удължаването на трасето до 3.3 м с два 90 градусови завоя??? Това ще доведе ли до загуба на мощност на изсмукване и допълнителен шум?
Чувал съм , че не е било добре аспиратора да е близо до прозореца, защото в режим на работа една част от измуквания въздух не е от помещението, а отвън-а това допълнително намалява пак капацитета.. Когато дограмата е нова-това дали е вярно?

Струва ли си този компромис с намаляване на капацитета на аспиратора, заради оптимизиране на зоните?
Или вариантите 1 и 2 са си по добризаради близостта на комина до аспиратора?

Благодаря за мненията и съветите,
Иван
shadowman - майстор
Гледам 1 и 2 са идентични и разликата се явява в горен ъглов шкаф. Ако ще правиш чекмеджета под мивката може да ги направиш с размерите на другите като най-горното ще е неподвижно и по-добре ъглов шкаф отколкото заглушен, също така ъгловия може да бъде и на буквата Г. Май първите варианти по-ми се нравят.
alno - напреднал
Не мисля че ще имаш проблеми с аспиратора относно въздуховода(зависи колко е мощен де).
Това че е близо до прозореца и щял да смуче въздух от вънка са глупости и няма за какво да те тревожат. Друг е въпроса обаче с визията на кухнята. Според мен ще е грозно отгоре да се мота алуминиева или пластмасова тръба и то цели 3 метра, та ако ще и да я затваряш с кутия.
Хубаво е естествената светлина от прозореца да се ползва върху работното място (миене на чинии, дробене на салата,и други подобни).
За ъгловите шкафове-ми който ви е по-удобен и най-лесен за ползване.
Аз лично предпочитам вариант 2, макар да нямат разлика с вариант 1.
Успех :yawinkle:
Krelion - специалист
Тези чекмеджета под мивката не ги схващам.
Вариант 2,но вдигни фурната по високо.Котлоните не са ли много близо до колоната?Представи си как ще държиш тигана с лявата ръка на големия котлон,а с дясната ще бъркаш пръжките.
ivanvasilev1970 - специалист
alno написа:
Друг е въпроса обаче с визията на кухнята. Според мен ще е грозно отгоре да се мота алуминиева или пластмасова тръба и то цели 3 метра, та ако ще и да я затваряш с кутия.
Забравих да спомена, че въздуховода ще се скрие с окачен таван....
ivanvasilev1970 - специалист
Krelion написа:
Тези чекмеджета под мивката не ги схващам.
Вариант 2,но вдигни фурната по високо.Котлоните не са ли много близо до колоната?Представи си как ще държиш тигана с лявата ръка на големия котлон,а с дясната ще бъркаш пръжките.
За котлоните си прав - просто не съм бил толкова пунктоален при чертането...относно фурната-първоначалния вариант беше с по висока фурна-на нивото на плота, но я смъкнахме с 16 см, защото нишата над фурната е за микровълнбова печка...
SoWhat - специалист
Не съм чел с подробности предните теми, но помещението с какво продължава? Ако е с хол, разположението на печката, толкова навътре и отдалеченост от аспиратор, няма ли да затруднява извеждането на изпаренията от фурната от стаята. При отварянето на фурната, част от миризмите ще отиват в дневната.
Иначе съм привърженик на фурни в колона. Удължаването на въздуховода не е проблем.
В твоя случай - 3 или 4. Но за 3 ще е много малка врата на долния глух шкаф, мисля.
Ако е само кухненско помещение бих си направил вариант 2. Горната ъглова врата на 1 не ме кефи.
ivanvasilev1970 - специалист
SoWhat написа:
Не съм чел с подробности предните теми, но помещението с какво продължава? Ако е с хол, разположението на печката, толкова навътре и отдалеченост от аспиратор, няма ли да затруднява извеждането на изпаренията от фурната от стаята. При отварянето на фурната, част от миризмите ще отиват в дневната.
Иначе съм привърженик на фурни в колона. Удължаването на въздуховода не е проблем.
В твоя случай - 3 или 4. Но за 3 ще е много малка врата на долния глух шкаф, мисля.
Ако е само кухненско помещение бих си направил вариант 2. Горната ъглова врата на 1 не ме кефи.
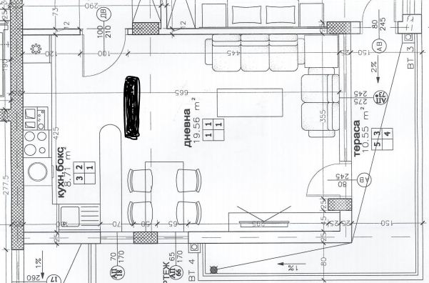
ето това е цялото помещение:
Прикачен файл:
ob6t.JPG
ob6t.JPG (55.65 KиБ) Видяна 5573 пъти
"...Ако е с хол, разположението на печката, толкова навътре и отдалеченост от аспиратор, няма ли да затруднява извеждането на изпаренията от фурната от стаята."
Тук кой вариант визираш?

"...Но за 3 ще е много малка врата на долния глух шкаф, мисля."
Достъпа до глухия шкаф във вариант 3 е през двоъната врата под мивката.
Chefo77 - майстор
На мен това, което не ми допада, е скупчването на хладилник и блок с фурни един до друг - и визуално, и като възможни проблеми от това топло/студено в бъдеще. Аз бих избрал вариант 5 - котлоните и фурната да са от лявата страна, до комина, а мивката - до прозореца (в. 1). Но това си е вашата кухня :)
SoWhat - специалист
Визирах в.1 и 2, но при това положение на стаята може.
А на мястото на най-левия шкаф /м/у прозорците/ направо си плаче за бар-плот.
Спирам се на 2.
  • 1
  • 2

Тема "4 варианта за кухня, а трябва да изберем един..." | Включи се в дискусията:


Сподели форума:

Бъди информиран. Следвай "Направи сам" във Facebook:

Намери изпълнител и вдъхновения за дома. Следвай MaistorPlus във Facebook: