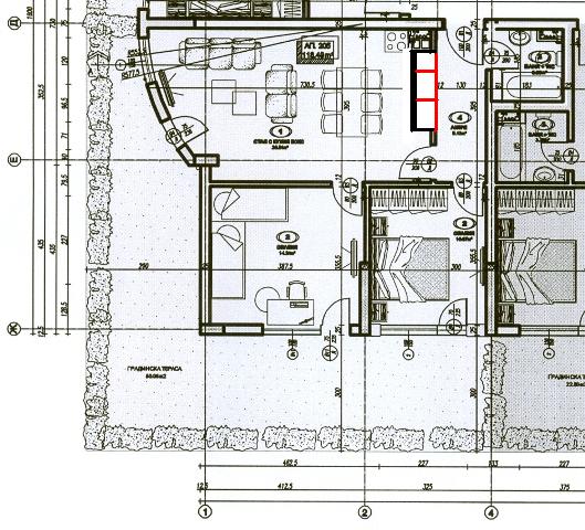
Привт на всички
Вече мога да се причисля към групата на ремонтиращите.
Имам проблем и много ще се радвам да дадете идеи и да споделите опит. Предварително се извинявам ако някъде е коментирано по форумите, разглеждах много, но така и не открих.
Качвам скица и се надявам да мога да обясня какви са ми дилемите
Искам да направя втора тоалетна, която нямаме за съжаление. Също така не мисля, че това е най-доброто разпределение за голямата стая - трапезария+кухня+хол. Ще ми се и кухнята да не е в този ъгъл. От информацията, която събрах до момента разбрах две неща - първо с тръбите за мръсната вода е сложно, защото трябва да се даде наклон, но пък и в никакъв случай не е невъзможно да се прави такова преустройство.
Коридорът е тесен и дълъг, което ме вбесява, защото не може да се сложи никаква мебел или шкаф, който все пак да има функции да побира някакъв багаж.
Аз лично имам някакви идеи, но ще се радвам ако вие споделите вашите.
Предварително благодаря
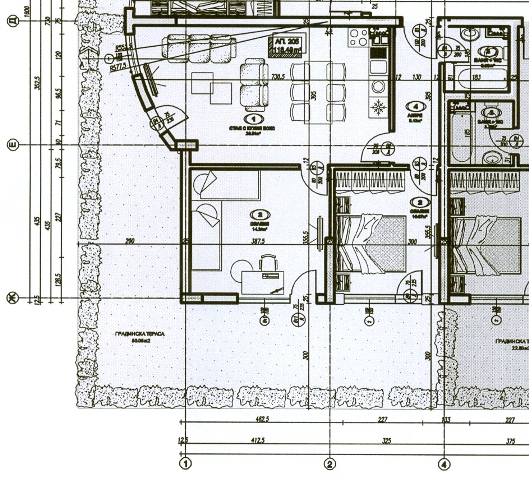
Вече мога да се причисля към групата на ремонтиращите.
Имам проблем и много ще се радвам да дадете идеи и да споделите опит. Предварително се извинявам ако някъде е коментирано по форумите, разглеждах много, но така и не открих.
Качвам скица и се надявам да мога да обясня какви са ми дилемите
Искам да направя втора тоалетна, която нямаме за съжаление. Също така не мисля, че това е най-доброто разпределение за голямата стая - трапезария+кухня+хол. Ще ми се и кухнята да не е в този ъгъл. От информацията, която събрах до момента разбрах две неща - първо с тръбите за мръсната вода е сложно, защото трябва да се даде наклон, но пък и в никакъв случай не е невъзможно да се прави такова преустройство.
Коридорът е тесен и дълъг, което ме вбесява, защото не може да се сложи никаква мебел или шкаф, който все пак да има функции да побира някакъв багаж.
Аз лично имам някакви идеи, но ще се радвам ако вие споделите вашите.
Предварително благодаря
Прикачен файл
apt_rai_uno_1.jpg (204.48 KиБ) Видяна 5814 пъти

