Ремонтът и при нас продължава.
Преустройваме стара тухла от 70те. Имаме отделни, съседни помещения кухня и трапезария. Към кухнята усвояваме и балкон.
При премахването на стената между кухнята, трапезарията и балкона остана носещата колона и сега обмисляме варианти за оптимално разположение в помещението.
Имаме някои идеи но нищо не е окончателно определено така че ще се радвам на всякакви идеи за разположение в кухнята и трапезарията. Ще ни се да имаме и бар-плот но отново - ако останалото разположение позволява.
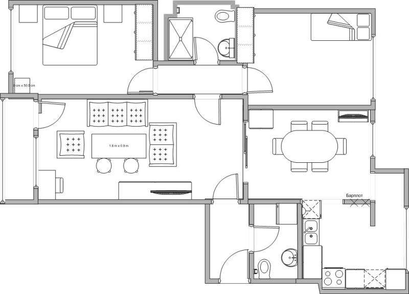
Преустройваме стара тухла от 70те. Имаме отделни, съседни помещения кухня и трапезария. Към кухнята усвояваме и балкон.
При премахването на стената между кухнята, трапезарията и балкона остана носещата колона и сега обмисляме варианти за оптимално разположение в помещението.
Имаме някои идеи но нищо не е окончателно определено така че ще се радвам на всякакви идеи за разположение в кухнята и трапезарията. Ще ни се да имаме и бар-плот но отново - ако останалото разположение позволява.
Прикачен файл
Стени към момента.
Kuhnq_trapezaria.jpg (10.76 KиБ) Видяна 5399 пъти
Прикачен файл
Размери
kuhnq_trapezaria_dim.jpg (104.96 KиБ) Видяна 5399 пъти
Прикачен файл
Трегери по тавана - в червено
Kuhnq_trapezaria_noseshti.jpg (12.43 KиБ) Видяна 5399 пъти
Прикачен файл
Основната ни идея за разположене до момента но можем да я сменим по всяко време при добра идея. Основното ни чудене - какво да напрвим около носещата колона по средата между помещенията.
Vksyhti_new_2.jpg (48.88 KиБ) Видяна 5399 пъти
