Зациклих - 3 проекта и все не остава достатъчно място. Идеята ми не е нова - да се премахне "зъбчето" под кухненския прозорец и да се остъкли терасата, като на нея да се разположат хладилника 4 (в ляво на терасата), а печката 3 - в дясно. Как обаче да се "усвои" пространството в кухнята от 2,1 х 3,5 m?
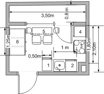
На снимка "Kitchen3" е състоянието в момента - В дясно до вратата пералня 1, шкаф-мивка 2, в дъното хладилника 4 и печката 3, в ляво на вратата кухненски бюфет 6, отпред маса 5 и сгъваеми столове.
На снимка "Kitchen3" е състоянието в момента - В дясно до вратата пералня 1, шкаф-мивка 2, в дъното хладилника 4 и печката 3, в ляво на вратата кухненски бюфет 6, отпред маса 5 и сгъваеми столове.
Прикачен файл
kitchen3.jpg (19.36 KиБ) Видяна 12190 пъти
Последна промяна от star_t на пон юли 31, 2006 6:57 am, променено общо 8 пъти.
