• 1
  • 2
Мечтата на всяка домакиня
nevangelina - напреднал
Здравейте,
отдавна следя с интерес мненията във форума:) Страхотни идеи:) Поздравления!
Обръщам се към вас с молба за помощ. Дайте ми идеи как е най добре да се разположат уредите и шкафчетата в кухнята ми. Апартамента е нов, всичко тепърва ще се купува, така 4е.... сложила съм някои уреди, но приемам идея и мнения! Ще се радвам ако откликнете!

Намали изображението! Модератор.
Последна промяна от nevangelina на чет юли 17, 2008 7:53 am, променено общо 2 пъти.
n_a - МАЙСТОРИЩЕ
Answers: 1
Някога ползвала ли си кухня?
nevangelina - напреднал
да, тази на майка ми
nevangelina - напреднал
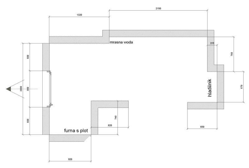
Извинявайте за закъснението със снимката:(( Имах проблеми с Интернета.....отново. Май ще сменям доставчика:)
Ето и схемата:) Дано не съм ви изнервила:)

Прикачен файл

Shema_kuhnq_.jpg
най-сетне стана:)
Shema_kuhnq_.jpg (27.72 KиБ) Видяна 5957 пъти
nevangelina - напреднал
да, сложничко изглежда :? - дано ви звучи като предизвикателство. Приобщихме северната терасКА към миниатюрното боксче. По тази причина са чупките отляео. Исках да съборя западните стенички и да стане едно голямо помещение с трапезарията, но се оказаха носещи и само разширих вратата колкото позволяваше. Иначе тук трябва да има само кухненските уреди-хладилник, печка, пералня и съдомиялна, имам голямо и просторно помещение за ниска и висока мебел :wink:
Emerald - модератор
===
Последна промяна от Emerald на вт мар 24, 2009 2:50 am, променено общо 1 път.
nevangelina - напреднал
Ето една схемичка набързо:)
http://picasaweb.google.com/ndelchinova ... 1447566690
на мястото на кръстчето в дневната има колона
nevangelina - напреднал
Моля, дайте си мнението за това, което снощи си поиграх да направя.
http://picasaweb.google.com/ndelchinova/Kitchen02
Знам че не е довършено, но идеята е ясна-поне на мен така ми се струва :).Фурната не съм я слагала, защото там не е интересно-фурна и шкаф 30 см - на малката (92см) страна-противоположната.
n_a - МАЙСТОРИЩЕ
Answers: 1
По първата скица в темата. Хладилникът на мястото на "фурна с плот". Между него и стената с прозореца рафтове и чекмеджета за продукти. Мивката отсреща до прозореца. Работен плот и най-вдясно котлони. Пералнята на мястото на хладилника, с изравняване на дълбочините в посока котлони. Фурна някъде на удобно място под работен плот - да не си пречи с нищо. Изравняване на дълбочините на горни шкафове, ще даде повече визуален простор. Под прозореца между хладилник и мивка може тесен плот със или без шкаф.
  • 1
  • 2

Тема "Моля, дайте ми идея за функционалност" | Включи се в дискусията:


Сподели форума:

Бъди информиран. Следвай "Направи сам" във Facebook:

Намери изпълнител и вдъхновения за дома. Следвай MaistorPlus във Facebook: