Здравейте,
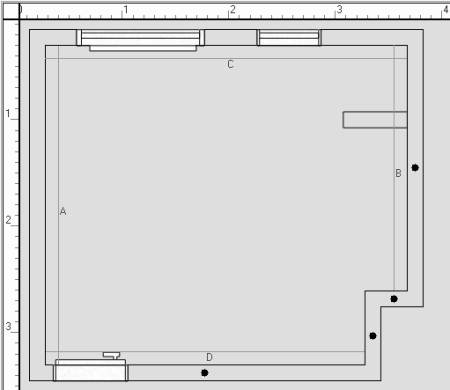
Надявам се някой от вас да е запознат с панелното строителство в Плевен. Кухнята на апартамента ми е от онези с малките тераски, които изглеждат като част от самата кухня. Интересувам се дали мога да съборя стените на терасата и да се получи една по-голяма правоъгълна кухня, без да има риск от срутване на сградата. За яснота съм направил и опит за чертеж
Благодаря предварително!
Надявам се някой от вас да е запознат с панелното строителство в Плевен. Кухнята на апартамента ми е от онези с малките тераски, които изглеждат като част от самата кухня. Интересувам се дали мога да съборя стените на терасата и да се получи една по-голяма правоъгълна кухня, без да има риск от срутване на сградата. За яснота съм направил и опит за чертеж
Благодаря предварително!
Прикачен файл
kuhnq.JPG (9.22 KиБ) Видяна 5783 пъти

