Моля някой ако има желание и възможност да направи един проект с тези размери
Прикачен файл
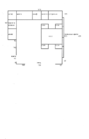
ова е разположението, малко неестествено изглеждат уредите в нишата те всъщност са само леко
KUHNQ.jpg (15.1 KиБ) Видяна 5064 пъти
Последна промяна от franzelkata на вт май 27, 2008 12:35 pm, променено общо 3 пъти.
