iolly_ написа: Между другото поздравявам те за решението под мивката ти да имаш място за краката..много е удобно...То не е за нея ми за малкия, като направи някоя беля да се сгушва там!
Мечтата на всяка домакиня
sasooooooooo
- "специалист"
71 мнения в "Помогнете с идеи"
trevora
- специалист
- Мнения: 357
sasooooooooo написа:Това е къщичката на кучетоiolly_ написа: Между другото поздравявам те за решението под мивката ти да имаш място за краката..много е удобно...То не е за нея ми за малкия, като направи някоя беля да се сгушва там!
iolly_,съдомиялната за вграждане се оставя отвор точно 45 см светъл и вратата се прави също на 45 см.Тя не застъпва страниците на съседните шкафове,защото ще имаш проблеми с отварянето на съдомиялната.За чекмедже под мивката аз също я харесвам тази идея,при моята кухня е точно така,но зависи при теб дали ще ти остане шкаф на мивката 60.Между другото защо си се спряла на 16 мм ПДЧ?
iolly_
- специалист
- Мнения: 216
trevora благодаря ти за съвета за миялната...направо сме пропуснали много важен момент..права си. Аз ще помоля някй ако може да ни качи някаква схемичка на тези монтажи на миялна 45. Нямам предвид схемите за вграждане, които са в книжките..имам такава..ами как се правят шкафовет аз нея. Ние отдолу искаме да имаме 80 мм бленда и малко не ни е ясно с тая миялна как ще стоят нещата...
А незнам защо си останала с впечатление, че ще си взимаме ПДЧ. Материлът ни е МДФ с естествен фурнир.
Татко донесе в къщи страхотни каталози на Blum....невероятни идеи...изобщо страшни са...
А незнам защо си останала с впечатление, че ще си взимаме ПДЧ. Материлът ни е МДФ с естествен фурнир.
Татко донесе в къщи страхотни каталози на Blum....невероятни идеи...изобщо страшни са...
shadowman
- майстор
- Мнения: 1868
За миялната не се прави шкаф а се оставя празно пространство според размера на уреда. Предполагам, че тревора има предвид ПДЧ за корпусите, а МДФ-а ви ще е само за варите. Аз не съм дали линк за ония варти, ако не е късно да давам ли?
http://www.blum.com/bg/bg/index.php
http://www.blum.com/bg/bg/index.php
trevora
- специалист
- Мнения: 357
Да,точно така.Имам предвид корпуса,че ще бъде 16 мм.Защо?И къде искаш да слагаш бленда 80 мм.Неможах да те разбера
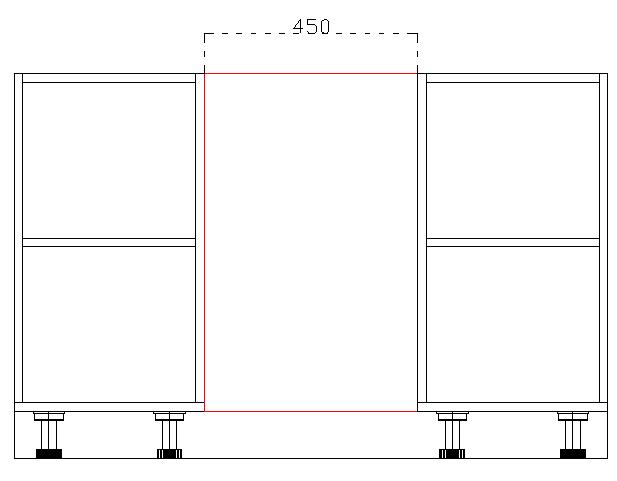
За съдомиялната оставяш 45 см.светъл отвор.Правите врата от МДФ или от какъвто материал решите на 45 см.,като отнемаш от този размер за фугите и евентуално за кантовете ако е от ПДЧ.
Прикачен файл
Това дали ще ти помогне?
2.jpg (20.87 KиБ) Видяна 6031 пъти
iolly_
- специалист
- Мнения: 216
Корпусът също ще е от МДФ, като дебелината ще е 18мм. Незнам къде съм писала 16 мм...да не е нещо по-рано, което сме мислили.
Бленда викам на тази дъска или дъски, които се слагат най-отдолу под вратите, за да не се виждат крачетата на шкафовете. Нея мислим да е 80 мм висока. За нея се чудя какво става под вратата на миялната.
Иначе за външният вид ни хрумна следната идея..вижте снимката. На самото дърво да се вмъкне един акцент в друг по-тъмен цвят. Но понеже все трябва да си измисляме неща за чудене, сега въпросът е дали това дърво от снимката да избереме или предното, което ви показах на предните страници. И двете са МДФ с естествен фурнир с хоризонтални шарки, но това на последната снимка има и разни други шарки и е по-светло, а другото се води fine line, демек само с прави линии, но е малко по-тъмно. Мислите ли, че на това fine ще отива цвета на елемента, който сме решили да слагаме?
Бленда викам на тази дъска или дъски, които се слагат най-отдолу под вратите, за да не се виждат крачетата на шкафовете. Нея мислим да е 80 мм висока. За нея се чудя какво става под вратата на миялната.
Иначе за външният вид ни хрумна следната идея..вижте снимката. На самото дърво да се вмъкне един акцент в друг по-тъмен цвят. Но понеже все трябва да си измисляме неща за чудене, сега въпросът е дали това дърво от снимката да избереме или предното, което ви показах на предните страници. И двете са МДФ с естествен фурнир с хоризонтални шарки, но това на последната снимка има и разни други шарки и е по-светло, а другото се води fine line, демек само с прави линии, но е малко по-тъмно. Мислите ли, че на това fine ще отива цвета на елемента, който сме решили да слагаме?
Прикачен файл
IMGP6878_malka.gif (133.1 KиБ) Видяна 5970 пъти
iolly_
- специалист
- Мнения: 216
Да наистина е така, по-евтино е, но незнам решихме, че ще е по-здраво и по-красиво като е същото. Пък нали все пак спестяваме от това, че сами си го правим.
Но много го мислим ози външен вид. Сега пък се чудим дали да не е с по-тънка тъмна ивица. Щ се опитам да ви го покажа на Solid нагледно. А я кажете вратата, която се закача на вратата на миялната за вграждане, нали трябва да е по-дълга от лицето на миялната?
Но много го мислим ози външен вид. Сега пък се чудим дали да не е с по-тънка тъмна ивица. Щ се опитам да ви го покажа на Solid нагледно. А я кажете вратата, която се закача на вратата на миялната за вграждане, нали трябва да е по-дълга от лицето на миялната?
Тема "Помогнете с идеи" | Включи се в дискусията:
Сподели форума:
Бъди информиран. Следвай "Направи сам" във Facebook:
Намери изпълнител и вдъхновения за дома. Следвай MaistorPlus във Facebook:
Имаш нужда от подходящ професионалист за дома?
- Преустройство, ремонт и реновиране
- ↳ Вашите ремонти
- ↳ Кухня
- ↳ Баня
- ↳ Дневна
- ↳ Спалня
- ↳ Детска
- ↳ Градина
- ↳ Коридор
- ↳ Тераса и балкон
- Направи сам
- ↳ Направи сам
- ↳ Ремонтирай сам
- ↳ Къде е по-евтино?
- ↳ Дърводелство
- ↳ Ел. инструменти
- ↳ Металообработване
- ↳ Конкурс "Направи сам 2012"
- Строителство
- ↳ Всичко за вилата
- ↳ Къщи
- ↳ Саниране
- ↳ Хидроизолация
- ↳ Пасивни и нискоенергийни сгради
- Сухо строителство
- ↳ Окачени тавани
- ↳ Преградни стени и предстенни обшивки
- ↳ Сухи и повдигнати подове
- ↳ Декоративни елементи - колони, трегери, сводове и др.
- ↳ Всичко за гипскартона и гипсфазера
- Въпроси и Отговори
- ↳ Полезни съвети
- ↳ Автомобили
- ↳ Партньори
- ↳ Боядисване и Декориране
- ↳ Вентилация, климатици и термопомпи
- ↳ Водоснабдяване и канализация.
- ↳ Всичко за ремонта
- ↳ Електротехника
- ↳ Отопление
- ↳ Газификация
- ↳ Електроника и Схеми
- ↳ Газобетон
- ↳ От всичко по малко
- ↳ Компютри и периферия
- ↳ Уеб дизайн, PHP, MySQL, JavaScript, HTML..
- ↳ Мобилни устройства, GSM-и
- ↳ Нека се запознаем
- ↳ Recycle Bin
- Статии
- ↳ Практични решения
- ↳ Качване на снимки
- ↳ Какви статии искате?
- ↳ Готварство, туршии и зимнина
- ↳ Отмора и шеги
- ↳ От нищо нещо
- ↳ Не е за вярване
- ↳ Литература
- ↳ Връзки към Интересни сайтове
- Магазин
- ↳ Препоръки и Мнения за он-лайн магазина
- ↳ Крадeни инструменти !!!

