Мечтата на всяка домакиня
desss
- специалист
25 мнения в "Хол кухня и трапезария в едно"
shadowman
- майстор
- Мнения: 1868
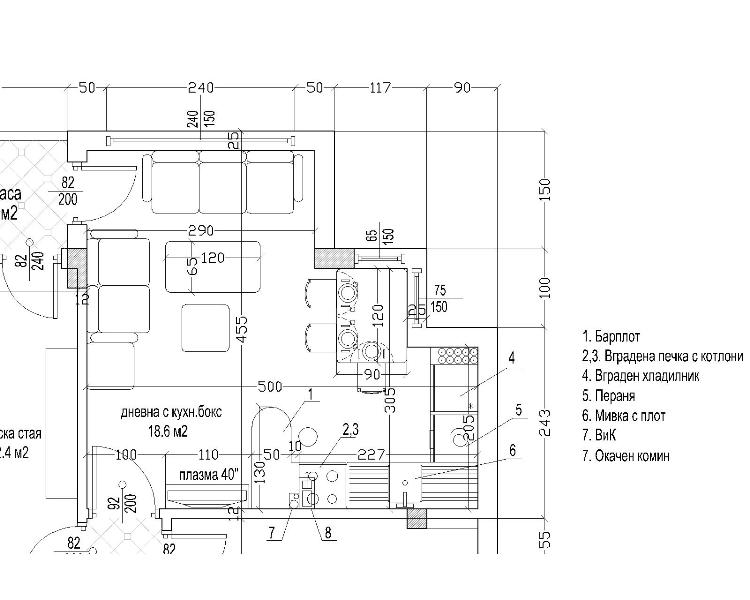
Според мен проекта е компромис. Заговори се за чекмеджета, в шкаф 300мм чисто за чекмеджето остава 200мм , демек почти нищо, ако пък се направят и по-дълбоки стават едни такива никакви. Съдомиялна с размер 500 мм не съм виждал, но има на 450 мм. Глухия шкаф до фурната освен, че ще е с малка врата има вероятност да си прече с вратата на фурната заради дръжките. Място за по-големи чекмеджета виждам на мястото на глухия шкаф до мивката, като трябва да се съобразяват с дръжките (това е работа на човека който ще я прави). След пералнята има шкаф 200 мм в който можеш да сложиш изтеглящ механизъм за бутилки, но понеже се явява краен шкаф ще е настебилен заради това, че е тесен.
pecito82
- помощник
- Мнения: 11
Здравейте това ми е апартамента който се строи, ако може накой да ми помогне за кухнята. Мисля да си е обзаведа по начина по който сам сложил уредите но ми се иска да вия как ще изглежда в 3D ако на някой му се заиграва мога да дам и АutoCad fail в 3D стени, за по лесно експортиране в макса. Иска ми се уредите да са вградени. Много ми хараса кухнята на ZORO tip mladost и браво на него за всичките кухни, всеки би поискал такива кухни. Уредите ми са хладилник, пералня, мивка, печка, котлони и микровълнова на която несам измислил мястото, както незнам дали това е оптималният вариант за подреждането на уредите и мебелите.Благодаря предварително за предложенията
Прикачен файл
13.03.08new1.jpg (55.45 KиБ) Видяна 5323 пъти
Antonina
- помощник
- Мнения: 17
Да ти призная shadowman имаш право ама аз като не съм се занимавала никога с тия работи и не съм обръщала внимание на размери нито на чекм/та нито на други такива шкафове...За съдомиялната знам че са по 45 см и че имам оттам резерва 5см а също така мисля че ще мога да направя шкафа под мивката 50см и оттам да спечеля още малко см-ри че да си направя едни що-годе нормални чекм/та. И пак вие ще кажете дали е възможно все пак вие сте компетентните и давате съвети /за което много ви благодаря /. А също така и за глухия шкаф т.е. мивка - 50см съдом.-45см чекм-та - 40см и глух шкаф- 45см. Нека ви питам и още нещо: възможно ли е глухия шкаф вляво да е с вратичка под мивката така че да се сместят пералнята и да стане един шкаф /чекм-та/ между нея и хладилника а може и с механизъм!?!
Тема "Хол кухня и трапезария в едно" | Включи се в дискусията:
Сподели форума:
Бъди информиран. Следвай "Направи сам" във Facebook:
Намери изпълнител и вдъхновения за дома. Следвай MaistorPlus във Facebook:
Имаш нужда от подходящ професионалист за дома?
- Преустройство, ремонт и реновиране
- ↳ Вашите ремонти
- ↳ Кухня
- ↳ Баня
- ↳ Дневна
- ↳ Спалня
- ↳ Детска
- ↳ Градина
- ↳ Коридор
- ↳ Тераса и балкон
- Направи сам
- ↳ Направи сам
- ↳ Ремонтирай сам
- ↳ Къде е по-евтино?
- ↳ Дърводелство
- ↳ Ел. инструменти
- ↳ Металообработване
- ↳ Конкурс "Направи сам 2012"
- Строителство
- ↳ Всичко за вилата
- ↳ Къщи
- ↳ Саниране
- ↳ Хидроизолация
- ↳ Пасивни и нискоенергийни сгради
- Сухо строителство
- ↳ Окачени тавани
- ↳ Преградни стени и предстенни обшивки
- ↳ Сухи и повдигнати подове
- ↳ Декоративни елементи - колони, трегери, сводове и др.
- ↳ Всичко за гипскартона и гипсфазера
- Въпроси и Отговори
- ↳ Полезни съвети
- ↳ Автомобили
- ↳ Партньори
- ↳ Боядисване и Декориране
- ↳ Вентилация, климатици и термопомпи
- ↳ Водоснабдяване и канализация.
- ↳ Всичко за ремонта
- ↳ Електротехника
- ↳ Отопление
- ↳ Газификация
- ↳ Електроника и Схеми
- ↳ Газобетон
- ↳ От всичко по малко
- ↳ Компютри и периферия
- ↳ Уеб дизайн, PHP, MySQL, JavaScript, HTML..
- ↳ Мобилни устройства, GSM-и
- ↳ Нека се запознаем
- ↳ Recycle Bin
- Статии
- ↳ Практични решения
- ↳ Качване на снимки
- ↳ Какви статии искате?
- ↳ Готварство, туршии и зимнина
- ↳ Отмора и шеги
- ↳ От нищо нещо
- ↳ Не е за вярване
- ↳ Литература
- ↳ Връзки към Интересни сайтове
- Магазин
- ↳ Препоръки и Мнения за он-лайн магазина
- ↳ Крадeни инструменти !!!
