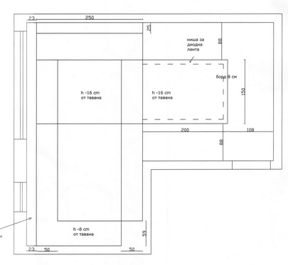
Колеги, някой не е разбрал чертежа или не зная какво, но имам проблем. Частта от тавана предназначена за LED е изнесена неправилно.
Въпроса ми е: ако се добавят допълнително профили и картон, за да стане според чертежа, дали няма после да се напука в мястото на снадката? Цялото пано ще бъде с венецианска мазилка / твърде скъпо, ако се съсипе/. Така направено пък е грозно.
Въпроса ми е: ако се добавят допълнително профили и картон, за да стане според чертежа, дали няма после да се напука в мястото на снадката? Цялото пано ще бъде с венецианска мазилка / твърде скъпо, ако се съсипе/. Така направено пък е грозно.
Прикачен файл
Таван2.jpg (23.2 KиБ) Видяна 3503 пъти
Прикачен файл
2.jpg (55.7 KиБ) Видяна 3503 пъти
Прикачен файл
1.jpg (26.99 KиБ) Видяна 3503 пъти



