Crafty написа:Пух има предвид хартиена лента - фабрично си е прегъната по средата и няма пукане, ако е положена добре. Поне знам, че такава ползва, пък "Он че си ка'е"Брато, нали ти казах, че има вече и вътрешен/външен ъгъл на хартиена лента с PVC водачи. Проблема му е, че все още е много скъп и трудно се намира. Иначе си прав - хартиена лента е за вътрешните ъгли ... ако няма - акрилче.
Pooh
- майстор
112 мнения в "Ето и моята конструкция,дайте мнения!"
petkomz
- специалист
petkomz
- специалист
- Мнения: 430
... и още...
Прикачен файл
PIC_0998.JPG (125.3 KиБ) Видяна 4881 пъти
Прикачен файл
PIC_0997.JPG (121.82 KиБ) Видяна 4881 пъти
Прикачен файл
PIC_0996.JPG (122.17 KиБ) Видяна 4881 пъти
Прикачен файл
PIC_0995.JPG (120.27 KиБ) Видяна 4881 пъти
Последна промяна от petkomz на пон апр 05, 2010 9:55 pm, променено общо 1 път.
petkomz
- специалист
- Мнения: 430
...още...
Прикачен файл
PIC_1024.JPG (115.23 KиБ) Видяна 4873 пъти
Прикачен файл
PIC_1023.JPG (114.17 KиБ) Видяна 4873 пъти
Прикачен файл
PIC_1022.JPG (111.48 KиБ) Видяна 4873 пъти
Прикачен файл
PIC_1021.JPG (113.2 KиБ) Видяна 4873 пъти
Прикачен файл
PIC_1019.JPG (117.61 KиБ) Видяна 4873 пъти
petkomz
- специалист
- Мнения: 430
... едно трегерче
...
Прикачен файл
PIC_1020.JPG (117.37 KиБ) Видяна 4863 пъти
Прикачен файл
PIC_1018.JPG (124.34 KиБ) Видяна 4863 пъти
Прикачен файл
PIC_1017.JPG (125.41 KиБ) Видяна 4863 пъти
Прикачен файл
PIC_1016.JPG (128.39 KиБ) Видяна 4863 пъти
Прикачен файл
PIC_0940.JPG (119.05 KиБ) Видяна 4863 пъти
sasooooooooo
- "специалист"
- Мнения: 1696
Сега да те питаме ли защо сложи картона успоредно на скарата? 
petkomz
- специалист
- Мнения: 430
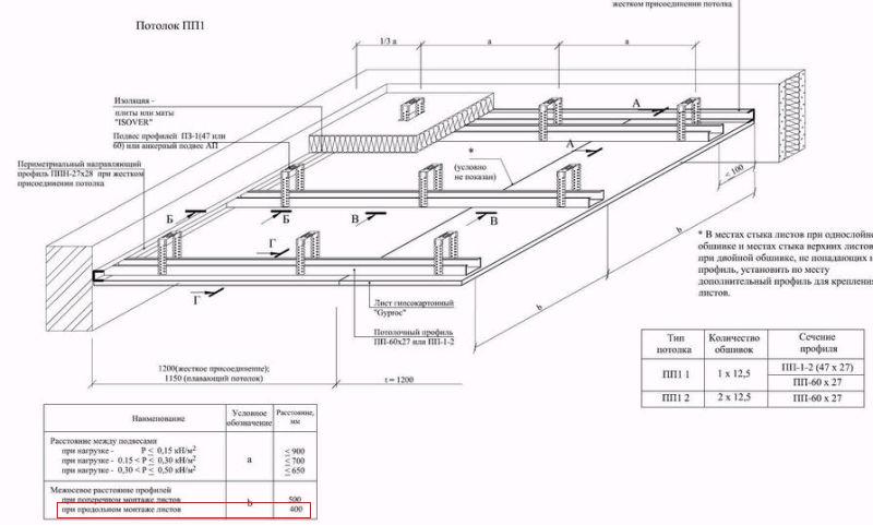
Профили през 50 см и картона напречно - листа виси на 6 линейни метра, аз ги сложих през 40 см и по дължина - листа виси на 8 линейни метра. Знам че съм се презастраховал, ама понеже правя таван за първи път и ще спим под него реших да е така, а пък и така снадките без профил от горе са по малко! Не агитирам никой да го прави като мен, просто така съм си по-спокоен!
Това е по схемата на IJAN, там е написано че когато листа е по дължина профилите са през 40 см.
Това е по схемата на IJAN, там е написано че когато листа е по дължина профилите са през 40 см.
Прикачен файл
схема.jpg (51.16 KиБ) Видяна 4767 пъти
Последна промяна от petkomz на пет апр 16, 2010 10:35 pm, променено общо 3 пъти.
petkomz
- специалист
- Мнения: 430
Ами от долу си има лента, а ще има и от горе ( там където свършва овала) просто по проект си ми беше на 60 см от стената.
А ето и как си начертах овала, става по-бавно но се получава 1:1.
А ето и как си начертах овала, става по-бавно но се получава 1:1.
Прикачен файл
РАЗМЕРИ 2.jpg (47.5 KиБ) Видяна 4835 пъти
Последна промяна от petkomz на пон апр 05, 2010 11:06 pm, променено общо 1 път.
Тема "Ето и моята конструкция,дайте мнения!" | Включи се в дискусията:
Сподели форума:
Бъди информиран. Следвай "Направи сам" във Facebook:
Намери изпълнител и вдъхновения за дома. Следвай MaistorPlus във Facebook:
Имаш нужда от подходящ професионалист за дома?
- Преустройство, ремонт и реновиране
- ↳ Вашите ремонти
- ↳ Кухня
- ↳ Баня
- ↳ Дневна
- ↳ Спалня
- ↳ Детска
- ↳ Градина
- ↳ Коридор
- ↳ Тераса и балкон
- Направи сам
- ↳ Направи сам
- ↳ Ремонтирай сам
- ↳ Къде е по-евтино?
- ↳ Дърводелство
- ↳ Ел. инструменти
- ↳ Металообработване
- ↳ Конкурс "Направи сам 2012"
- Строителство
- ↳ Всичко за вилата
- ↳ Къщи
- ↳ Саниране
- ↳ Хидроизолация
- ↳ Пасивни и нискоенергийни сгради
- Сухо строителство
- ↳ Окачени тавани
- ↳ Преградни стени и предстенни обшивки
- ↳ Сухи и повдигнати подове
- ↳ Декоративни елементи - колони, трегери, сводове и др.
- ↳ Всичко за гипскартона и гипсфазера
- Въпроси и Отговори
- ↳ Полезни съвети
- ↳ Автомобили
- ↳ Партньори
- ↳ Боядисване и Декориране
- ↳ Вентилация, климатици и термопомпи
- ↳ Водоснабдяване и канализация.
- ↳ Всичко за ремонта
- ↳ Електротехника
- ↳ Отопление
- ↳ Газификация
- ↳ Електроника и Схеми
- ↳ Газобетон
- ↳ От всичко по малко
- ↳ Компютри и периферия
- ↳ Уеб дизайн, PHP, MySQL, JavaScript, HTML..
- ↳ Мобилни устройства, GSM-и
- ↳ Нека се запознаем
- ↳ Recycle Bin
- Статии
- ↳ Практични решения
- ↳ Качване на снимки
- ↳ Какви статии искате?
- ↳ Готварство, туршии и зимнина
- ↳ Отмора и шеги
- ↳ От нищо нещо
- ↳ Не е за вярване
- ↳ Литература
- ↳ Връзки към Интересни сайтове
- Магазин
- ↳ Препоръки и Мнения за он-лайн магазина
- ↳ Крадeни инструменти !!!

