Привет на всички!
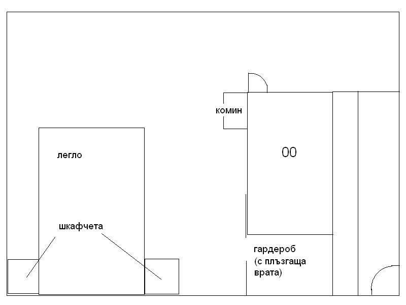
В тази тема моля да ми помогнете да сътворя от кухнята и тоалената и мокрото - спалня със самостоятелна баня с тоалетна. Стените се предвижда да се бутат там, където няма да са необходими. Ще се радвам на вашите предложения, че от мислене вече ме боли глава. Прилагам старото разпределение, както и две от моите решения. Проблемът е в комина на кухнята, които се ползва от съседите отдолу и ще се наложи да остане посредата на стаята. За да може да се минава покрай него риших, че стената на банята ще трябва да се счупи под ъгъл и пак заради него така съм разположила и леглото. Друг вариант не успях да измисля. И така помагаите с идеи както за обзавеждането в спалнята, така и за разпределението на банята. Също така много ми се иска да може да се побере душ кабина поне 90х90, че да не се мокри всичко след един душ
Предварително благодаря за идеите.
В тази тема моля да ми помогнете да сътворя от кухнята и тоалената и мокрото - спалня със самостоятелна баня с тоалетна. Стените се предвижда да се бутат там, където няма да са необходими. Ще се радвам на вашите предложения, че от мислене вече ме боли глава. Прилагам старото разпределение, както и две от моите решения. Проблемът е в комина на кухнята, които се ползва от съседите отдолу и ще се наложи да остане посредата на стаята. За да може да се минава покрай него риших, че стената на банята ще трябва да се счупи под ъгъл и пак заради него така съм разположила и леглото. Друг вариант не успях да измисля. И така помагаите с идеи както за обзавеждането в спалнята, така и за разпределението на банята. Също така много ми се иска да може да се побере душ кабина поне 90х90, че да не се мокри всичко след един душ
Предварително благодаря за идеите.
Прикачен файл
razpredelenie 2.JPG (46.09 KиБ) Видяна 8412 пъти
Прикачен файл
razpredelenie 3.JPG (28.96 KиБ) Видяна 8421 пъти
Прикачен файл
razpredelenie initial.JPG (14.97 KиБ) Видяна 8423 пъти
Последна промяна от nbeli на пон фев 09, 2009 3:58 pm, променено общо 3 пъти.


