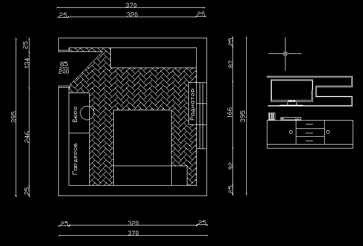
Здравейте! Най-накрая ми остана свободно време и мисля лятото лека полека да обновя спалнята ми. Ремонта ще е цялостен, като ще се слага ламинат, ще се пребоядисват стени, ще се слага тапет на една от стените. Мебелите също така ще са нови. По-долу ще приложа и снимка на стаята и как съм замислил да разположа мебелите, но не бих отказал и вашите идеи за разположението. Мисля да сложа приста, тъй като стаята не е от най-големите и трябва все пак да има някакво пространство. Цвета който съм харесал за мебелите е Венге, като мисля ламинирания паркет да е в същия цвят, но не мога да измисля стени и тапета какъв цвят да са, че да се съчетаят. Ремонта като цяло ще става бавно, тъй като всичко ще си правя сам. Та първият ми въпрос е, в момента паркета е от дъски, като къщата е гредоред, мога ли директно върху дъските да редя ламината ? Държа да отбележа, че нямам много опит, млад съм на 21 години, та моля да ме простите ако изръся някоя глупост 
Прикачен файл
12.jpg (75.78 KиБ) Видяна 7380 пъти
