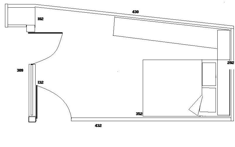
Моля за помощ, относно обзавеждането. Това е спалнята с размерите.
И понеже в къщи аз имам думата само за важните неща (например: борбата с глада в глобален мащаб, световния мир и др. такива), жената отсече, че според Фън Шуй леглото трябва да е в ъгъла, дори не можело по диагонал.
Идеята ми е леглото да е с механизъм за да може от долу да се слагат разни неща. Предполагам, че на стената трябва да сложа някаква плоскост за да не се цапа. И си мисля за някакви шкафчета над главите, които преминават в гардероб на съседната стена.
Ще съм много благодарен, ако някой може да качи снимки или линкове с подобни легла и гардероби към тях.
И понеже в къщи аз имам думата само за важните неща (например: борбата с глада в глобален мащаб, световния мир и др. такива), жената отсече, че според Фън Шуй леглото трябва да е в ъгъла, дори не можело по диагонал.
Идеята ми е леглото да е с механизъм за да може от долу да се слагат разни неща. Предполагам, че на стената трябва да сложа някаква плоскост за да не се цапа. И си мисля за някакви шкафчета над главите, които преминават в гардероб на съседната стена.
Ще съм много благодарен, ако някой може да качи снимки или линкове с подобни легла и гардероби към тях.
Прикачен файл
Spalnia.JPG (30.42 KиБ) Видяна 20680 пъти
Прикачен файл
IMAGE_00041.jpg (19.62 KиБ) Видяна 20680 пъти

