Здравейте,
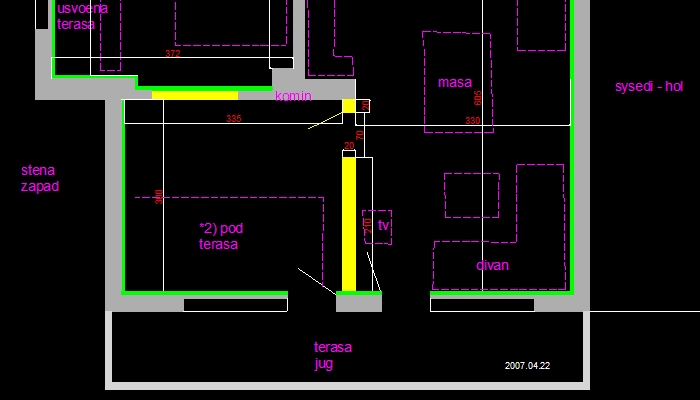
Ситуацията е следната - разполагаме с едно голямо Г-образно помещение и искаме да разделим с преградна стена (с врата) така че да се обсобят хол + детска стая. За момента планът е преградната стена да бъде изградена от гипсокартон + вата (2.5 см гиспокартон + 10 см вата + 2.5 см гиспокартон = 15 см общо).
Най-голямото притеснение е шумоизолацията на преградната стена - как да направим така че случващото се в хола да не пречи на детския сън (като имаме предвид че телевизора се пада да се намира до / върху стената) ... и обратното - детските лудории да не пречат на върастните - поне докато вратата е затворена.
Всякакви коментари и идеи - за укрепване на конструкцията, вид на ватата и т.н. - са добре дошли ... особено много ме притеснява звукоизолацията на вратата - досега май не съм виждал врата която да няма пролуки отвсякъде ...
Благодаря предварително - прилагам и малко снимки
Ситуацията е следната - разполагаме с едно голямо Г-образно помещение и искаме да разделим с преградна стена (с врата) така че да се обсобят хол + детска стая. За момента планът е преградната стена да бъде изградена от гипсокартон + вата (2.5 см гиспокартон + 10 см вата + 2.5 см гиспокартон = 15 см общо).
Най-голямото притеснение е шумоизолацията на преградната стена - как да направим така че случващото се в хола да не пречи на детския сън (като имаме предвид че телевизора се пада да се намира до / върху стената) ... и обратното - детските лудории да не пречат на върастните - поне докато вратата е затворена.
Всякакви коментари и идеи - за укрепване на конструкцията, вид на ватата и т.н. - са добре дошли ... особено много ме притеснява звукоизолацията на вратата - досега май не съм виждал врата която да няма пролуки отвсякъде ...
Благодаря предварително - прилагам и малко снимки
Прикачен файл
Снимка на сегашната стая - новата преградна стена трябва да мине между двете врати
interior.jpg (81.86 KиБ) Видяна 16176 пъти
Прикачен файл
схема на разделението
interior_schema.jpg (84.87 KиБ) Видяна 16176 пъти


