Благодаря предварително на всеки които предложи идея за таван на мансарда /две нива -Без овални форми/ .
С две думи,закупехми си мансарда,която по цялата дължина има наклон /наклона върви и в трите стаи/.Проблема е ,че има едно място до вратата за терасата което е S-образно и нямаме никаква идея как да си направим тавана.
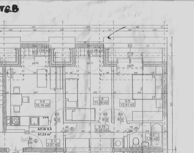
Откривам темата,защото разгледах целия форум и не намерих нищо по моя проблем.Предстои ми ремонт на цялото жилище /остава само месец да взема ключа/ и с удоволсвие ще показвам снимки на всичко което направим.Сега качвам снимки на скицата на апартамента,и на въпросните наклони,както и проекта за кухня.Дано не ви досадя с въпросите които имам да ви задам.
С две думи,закупехми си мансарда,която по цялата дължина има наклон /наклона върви и в трите стаи/.Проблема е ,че има едно място до вратата за терасата което е S-образно и нямаме никаква идея как да си направим тавана.
Откривам темата,защото разгледах целия форум и не намерих нищо по моя проблем.Предстои ми ремонт на цялото жилище /остава само месец да взема ключа/ и с удоволсвие ще показвам снимки на всичко което направим.Сега качвам снимки на скицата на апартамента,и на въпросните наклони,както и проекта за кухня.Дано не ви досадя с въпросите които имам да ви задам.
Прикачен файл
600.jpg (56.54 KиБ) Видяна 14695 пъти
Прикачен файл
ideia za kuhnia.jpg (33.81 KиБ) Видяна 14695 пъти
Прикачен файл
naklon 1.jpg (67.11 KиБ) Видяна 14695 пъти
Прикачен файл
naklon na tavana do vratata.jpg (63.37 KиБ) Видяна 14695 пъти

