Здравейте, хванах се да си правя тавана в апартамента сам, прочетах някоя друга статия, видях няколко снимки, но възникнаха няколко въпроса.
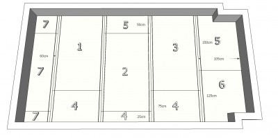
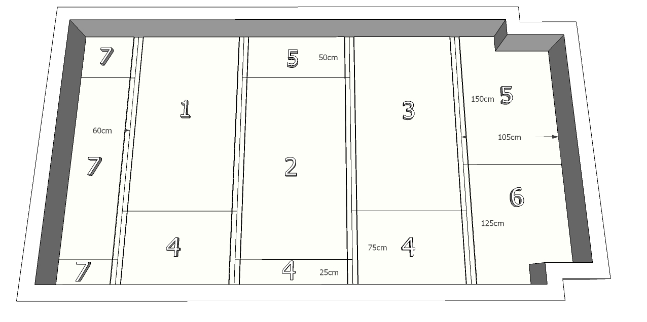
1.Носещата конструкция е изградена на едно ниво, поради тази причина трябва да закрепя CD към CD профил. Първоначално го правих по начина показан на снимка "Монтаж CD/CD преди да видя Knauf", като днес монтирах част от профилите м/у носещите CD по метода на кнауф, но ми направи впечетление, че е доста по-нестабилно, т.е. във вертикала се движи свободно контрукцията в точките на връзка(все още не съм нивилирал тавана).Според вас, кой вариант е по-надежден и мога ли да си ползвам моя вариант ?
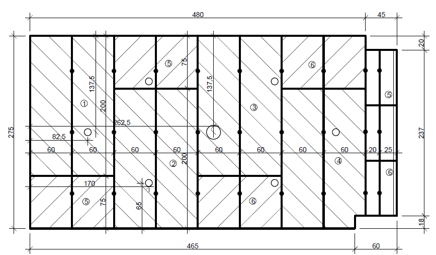
2. Според вас, добре ли са разпределени профилите показани на снимка "Проек за спалня 3.4м/3.1м" ? С кръгче и черта са означени местата на поставяне на директните окачвачи(с два анкер пирона), като CD профилите(5-те броя) на дългата страна(3,4м) са цели от край до край. Въпроса е напречните, по кой от методите по-горе да ги напрвя и дали ми стигат точките на окачване или трябва допълнително. С различни цветове съм показал различните листове гипс-картон, така че да се застъпват фугите, доколкото може.
На последната снимка е коридора(1.5м/3м) като закрепях профилите по моя начин и като цяло конструкцията е доста по-стабилна, но може би заради по-малките размери.
1.Носещата конструкция е изградена на едно ниво, поради тази причина трябва да закрепя CD към CD профил. Първоначално го правих по начина показан на снимка "Монтаж CD/CD преди да видя Knauf", като днес монтирах част от профилите м/у носещите CD по метода на кнауф, но ми направи впечетление, че е доста по-нестабилно, т.е. във вертикала се движи свободно контрукцията в точките на връзка(все още не съм нивилирал тавана).Според вас, кой вариант е по-надежден и мога ли да си ползвам моя вариант ?
2. Според вас, добре ли са разпределени профилите показани на снимка "Проек за спалня 3.4м/3.1м" ? С кръгче и черта са означени местата на поставяне на директните окачвачи(с два анкер пирона), като CD профилите(5-те броя) на дългата страна(3,4м) са цели от край до край. Въпроса е напречните, по кой от методите по-горе да ги напрвя и дали ми стигат точките на окачване или трябва допълнително. С различни цветове съм показал различните листове гипс-картон, така че да се застъпват фугите, доколкото може.
На последната снимка е коридора(1.5м/3м) като закрепях профилите по моя начин и като цяло конструкцията е доста по-стабилна, но може би заради по-малките размери.

