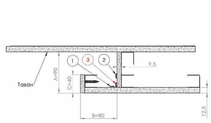
Искам да си направя в коридора нещо като "зъбче" от гипскартон за скрито светодиодно осветление.
Нещо такова: Проблема е, че по стената, точно където трябва да сложа УД профила (вдясно на картинката) минават много кабели.
Има ли някакъв надежден начин да закрепя профила без да слагам дюбели. Допуска ли се например с монтажно лепило
Благодаря предварително

