• 1
  • 19
  • 20
  • 21
  • 22
  • 23
  • 43
Почерпете информация и ценни съвети от темите за окачени тавани или разгледайте
изпълнители за окачени тавани и сравенете оферти и цени за вашия предстоящ проект
Да попитам.Чета тук пък и в брошурата на Кнауф се казва че първият монтажен профил CD при двойна скара се монтира на 10 см от стената а останалите на 40 или 50 см един отдруг.Ама нали листа ГК е 200 см и при това положение краят му като се постави в началото до стената няма да лежи на CD аще е на 10
см в страни.Дали нещо не съм разбрал?
leonardo_vd - модератор
sto_ian написа:
Да попитам.Чета тук пък и в брошурата на Кнауф се казва че първият монтажен профил CD при двойна скара се монтира на 10 см от стената а останалите на 40 или 50 см един отдруг.Ама нали листа ГК е 200 см и при това положение краят му като се постави в началото до стената няма да лежи на CD аще е на 10
см в страни.Дали нещо не съм разбрал?
Първия се монтира на 10-15см. но това не променя подредбата на другите, защото те се мерят от стената а не от първия. Това се преви с цел картона да е захванат по-близо до стената за ЦД профил. Има доста изписано по тази тема, всички го знаем, но почти никой не го практикува, както и всички си захващаме картона и по УД профилите. ФАтално е когато не се спазва това при сгради от гъвкави конструкции, метални, дървени и други подобни.
gvladkov - специалист
Бихте ли ме насочили към тема или да разясните тук как се правят разни фигури и скрито осветление,но стъпка по стъпка,ако е възможно,че ми предстой такова начинание.
Благодаря предварително.
ukrainian - помощник
Здавейте,
Тъй като съм съвсем новак в сухото строителство и то по принуда и мерак, след изчитане подробно на доста от темите за окачени тавани ми изникнаха няколко въпроса преди да започна първия ми окачен таван:
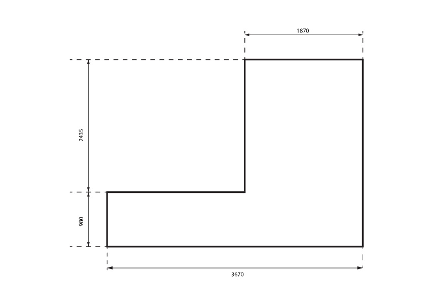
1. Имам два тавана със следните размери 3310х1400(обособен балкон за кухня) и 1870x1050(малката част на коридора при входната врата). Въпроса ми е дали да се използва двойна скара за толкова малки размери и ако да, дали носещите да са 1 или 2 CD профила?

2. Другата част на коридора е с формата показан на картината и въпроса ми как се процедира с нареждането на профилите за двойната скара? Като два отделни правоъгълника ли да ги третирам с допрени едно до други UD-та висящи и държащи се само на перпендикулярните им UD, закачени за стените или някаква Г-образна конструкция?

3. Когато CD профилите трябва да се удължават за по-дълги тавани, как се процедира? Носещите се снаждат така, че да не съвпадат със снадките на крепежните CD-та ли? Директните окачвачи на какво разстояние трябва да бъдат спрямо CD снадката за удължаване на профила?

4. Около вертикални тръби от парното мисля да оформя колона, като съответно има няколко отвора с решетки за излизане на топлината към стаите. Това правилно решени ли е и намират ли се такива декоративни решетки?

Благодаря предварително!

Прикачен файл

ceiling.jpg
ceiling.jpg (16.49 KиБ) Видяна 6956 пъти
jekasus - майстор
1 : терена е малък, няма смисъл от двойна скара.
2 : За единична скара = в черно - CD профил, в червено - картон.
Прикачен файл:
ceiling.jpg
ceiling.jpg (21.87 KиБ) Видяна 6932 пъти
3 : по тази схема ще ползваш CD профил с дължина 4000мм.за да избегнеш удължаване.
Ще постна и три варианта за удължаване на CD профили, като ги захващаш странично сИзображение.

Прикачен файл

DSC_0529.JPG

Прикачен файл

DSC_0528.JPG

Прикачен файл

DSC_0527.JPG
The_FAN - специалист
jekasus написа:
1 : терена е малък, няма смисъл от двойна скара.
2 : За единична скара = в черно - CD профил, в червено - картон.
Прикачен файл:
ceiling.jpg
3 : по тази схема ще ползваш CD профил с дължина 4000мм.за да избегнеш удължаване.
Ще постна и три варианта за удължаване на CD профили, като ги захващаш странично сИзображение.
При вариант 1 на парчето което свързва 2-те дължини му се маха извитата част на перата и се поставя отвън а не вътре в CD-тата които свързваш и тогава става....
2-рия го бива що годе....
Но ..... има си CD муфа (удължител) за тия работи .... 30 ст. едва ли ще те разорят
ukrainian - помощник
jekasus написа:
1 : терена е малък, няма смисъл от двойна скара.
2 : За единична скара = в черно - CD профил, в червено - картон.
Прикачен файл:
ceiling.jpg
3 : по тази схема ще ползваш CD профил с дължина 4000мм.за да избегнеш удължаване.
Ще постна и три варианта за удължаване на CD профили, като ги захващаш странично сИзображение.
Благодаря, за единичната скара и аз така съм си разчертал тавана, но се надявам някой да даде идея за двойна скара. На мен това което ми хрумва е както съм описал по горе, да се разглеждат като два отделни правоъгълника.
The_FAN написа:
При вариант 1 на парчето което свързва 2-те дължини му се маха извитата част на перата и се поставя отвън а не вътре в CD-тата които свързваш и тогава става....
2-рия го бива що годе....
Но ..... има си CD муфа (удължител) за тия работи .... 30 ст. едва ли ще те разорят
Не знаех, че има муфи(удължители) за CD, така че със сигурност тях ще ги използвам ако се наложи.
  • 1
  • 19
  • 20
  • 21
  • 22
  • 23
  • 43

Тема "Въпроси относно монтирането на окачени тавани" | Включи се в дискусията:


Сподели форума:

Бъди информиран. Следвай "Направи сам" във Facebook:

Намери изпълнител и вдъхновения за дома. Следвай MaistorPlus във Facebook: