Почерпете информация и ценни съвети от темите за окачени тавани или разгледайте
изпълнители за окачени тавани и сравенете оферти и цени за вашия предстоящ проект
drastar - специалист
Здравейте,
скоро трябва да се прави висящ таван в хола, който е с височина 250см. Идеята ми е цял таван (5-6см с изолация) и после фигура(40см широка) като на колегата legoelf по горе(индиректно осветление към прозорците и към вътрешността на хола). Проблемът ми е разчупеността а на помещението. Как да се редят профилите, като се има предвид, че трябва и профил който да държи корнизите за пердетата(ще са двойни, тъмните пердета са тежички). Още един проблем, трябва да бучна :-D един касетъчен климатик в 'центъра' на хола. Това ще трябва да е някаква квадратна фигура, защото касетата е с височина 30-35см :?

Благодаря предварително :-D
:partyman:

Прикачен файл

6.JPG
по тази схема
6.JPG (40.91 KиБ) Видяна 9020 пъти

Прикачен файл

shema.JPG нещо такова трябва да направя

Прикачен файл

Stromberg.JPG Това е хола с реалните размери
drastar - специалист
Благодоря на всички които помогнаха. Тавана е готов, за самата вигура от по горните снимки, видях и направих със ръчна фреза за дърво. Нямам нито един поставен ъгъл , по малко шпакловка, по бързо и....
фрезата се ползва за направата на бордовете, ако са 10см , чертаеш на гипскартона 10см, настройваш фрезата (нож 45 градуса) , да се забива 10мм и минаваш по линията, после сгъваш и слагаш профилчето, видийки и си готов. Хартиятя на гипскартона не се наранява, ефекта е страОтен. Довечера ще кача снимки.
tysonlkr - специалист
Колега drastar може да споделиш някоя снимка на завършения таван :wink:

Да се включа и аз в темата и да ви попитам едно изпълнение добре ли съм го замислил. За схемата съм използвал вашите и съм я преработил за моя случай.
Аз си правя цял равен таван, краят от към прозореца ще завършва по този начин показан на схемата
Прикачен файл:
shema.jpg
shema.jpg (39.78 KиБ) Видяна 8784 пъти
сглобката в края ще я реализирам с два UD профила единият захванат за тавана с анкери, а другият ще се захване за първият с копчета и къси CD-та които ще влизат в двата UD профила.

На какво разстояние трябва да поставя най близкото CD до тази конструкцийка? 50 см ще са много ли?
И при такава конструкция ще има ли опасност от провисване?
drastar - специалист
Опа, сори, оправих споделянето :axe:
ukrainian - помощник
Здравейте,
Тъй както за пръв път ще правя конструкция за скрито осветление тази тема ми беше доста полезна как да направя конструкцията.
Имам няколко въпроса:
1. За завършващата страна на "челото"(ако така е правилно да се казва) предполагам се използва някакъв П профил. В Ташев-Галвин намерих ето този продукт Профил PVC за гипскартон. Правилно ли съм се ориентирал или друг е типа профил за завършване на единичен лист картон.
2. Отстоянието от тавана до края на "челото", кухината която се получава. Знам, че сигурно това е личен избор на всеки, но от гледна точка на опита Ви как бихте ме посъветвали. Двоумя се межу 60-80мм и така с челото от 50мм да стане разстояние по-голяма от 100мм. В едната част ще имам говорители, които със сигурност изискват поне 100мм.
nikolov333 - майстор
Има си завършващи алуминиеви Г-лайстни за гипскартон. Лепят се и се шпакловат като ъгловите, но е голяма играчка да ги монтираш както трябва.. в смисъл прави и хоризонтирани. При такова скрито осветление, насочено към стените, всяка неравност и дефект при боядисването личи и ти "вади" очите!! У нас е така и пребоядисвах три пъти, понеже основата имаше много дефекти.. :axe:
Динев - помощник
пон май 28, 2018 12:20 pmukrainian написа:
1. За завършващата страна на "челото"(ако така е правилно да се казва) предполагам се използва някакъв П профил. В Ташев-Галвин намерих ето този продукт Профил PVC за гипскартон. Правилно ли съм се ориентирал или друг е типа профил за завършване на единичен лист картон.
Май трябва да е такъв :arrow:
Изображение .
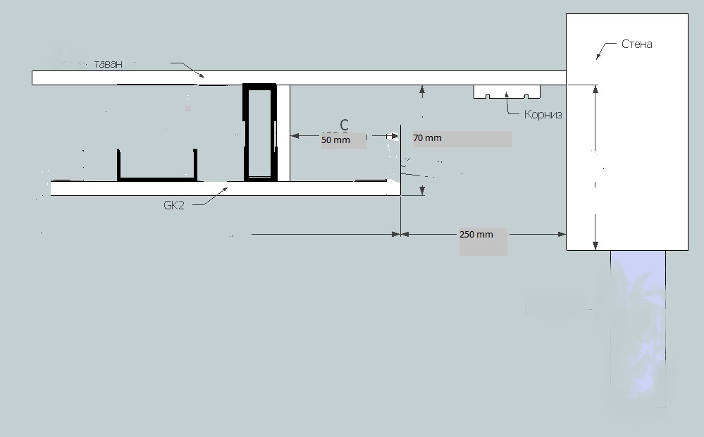
Здравейте,
Бих искал да попитам така направената конструкция дали има някакъв конструктивен проблем за изпълнението и.
Крайния елемент смятам да го фрезовам с оберфреза и да си го подготвя предварително за да си олесня монтажа.

Прикачен файл

таван.png
таван.png (54.33 KиБ) Видяна 3423 пъти

Тема "Скриване на корниз + скрито осветление - схема" | Включи се в дискусията:


Сподели форума:

Бъди информиран. Следвай "Направи сам" във Facebook:

Намери изпълнител и вдъхновения за дома. Следвай MaistorPlus във Facebook: