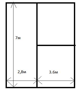
Или термопанел не знам точно как се води. Та което ме интересува е какъв тип метална конструкция възможно най олекотена може да се направи? Покрива ще е двускатен. Размера на стените върху които може да стъпи конструкцията е на чертежа. Подпокривното няма да се ползва.
Дали има начин да се направи вместо с големи профили с по малки тип 'ферма'?
Някой има ли идея колко би струвал необходимия материал за металната конструкция?
Панела който ще се ползва ще е минимум 50мм ако има значение.
Искам да се получи нещо като на снимката, но се чудя какви профили и през колко.
Дали има начин да се направи вместо с големи профили с по малки тип 'ферма'?
Някой има ли идея колко би струвал необходимия материал за металната конструкция?
Панела който ще се ползва ще е минимум 50мм ако има значение.
Искам да се получи нещо като на снимката, но се чудя какви профили и през колко.
Прикачен файл
чертеж3.JPG (21.19 KиБ) Видяна 18427 пъти
Прикачен файл
чертеж1.JPG (18.26 KиБ) Видяна 18439 пъти
