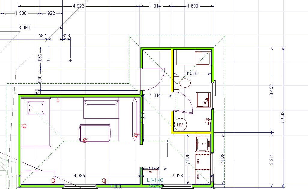
Здравейте колеги,отварям тази тема за да обсъждаме процеса на работа по дострояването на ~17m2 към съществуваща лятна кухня(12м2).Целта е в новите 17м2 да се поместят малка кухня,баня и тоалетна и коридор.Плана е направен,разпределението също,утре идва трактор да ми изкопае основите...те ще са ивечести и от бутобетон.

pristroika.jpg (94.52 KиБ) Видяна 4306 пъти
Хоринзонталното е вече съществуващото,а вертикалното с размери 3 на 5.6м е това което искам да достроя.От долната страна до горната има денивелация 80см,мисля да вкопая основите 80см и широки 40см като над земята ще се направи кофраж с дъски,а вътре ще се напълни с изкопната пръст/камъни и после чакъл/филц.Основите ще са от четерите страни като във всеки ъгъл ще има колони 25/25см и 2 междинни по средата,общо 6.Ще се зида с тухли поротерм 25n+f lite като отгоре ще се направи пояс и таван от греди дъски и вата,без плоча.
Въпросите са на този етап са ми:
Вътрешната преградна стена в жълто ще се зида с тухли четвори прави,отдолу трябва ли да правя пак стъпка или може директно на плочата да се зидат.
Бутобетона мога ли да го направя и над земята или в кофража трябва бетона да е с арматура.
Ако имате някакви препоръки и мнения ще се радвам да ги споделите,решил съм да си го правя аз и основите трябва да ги завърша преди да се е развалило времето,зидарията ше е на пролет.
Прикачен файл:
pristroika.jpg (94.52 KиБ) Видяна 4306 пъти
Въпросите са на този етап са ми:
Вътрешната преградна стена в жълто ще се зида с тухли четвори прави,отдолу трябва ли да правя пак стъпка или може директно на плочата да се зидат.
Бутобетона мога ли да го направя и над земята или в кофража трябва бетона да е с арматура.
Ако имате някакви препоръки и мнения ще се радвам да ги споделите,решил съм да си го правя аз и основите трябва да ги завърша преди да се е развалило времето,зидарията ше е на пролет.