Привет,
Малко се поколебах дали да пусна темата в раздел "Саниране", но сметнах, че в този раздел ще е по-подходящо. Възнамерявам да отделя стълбищната клетка от таванския етаж за да стане независим..
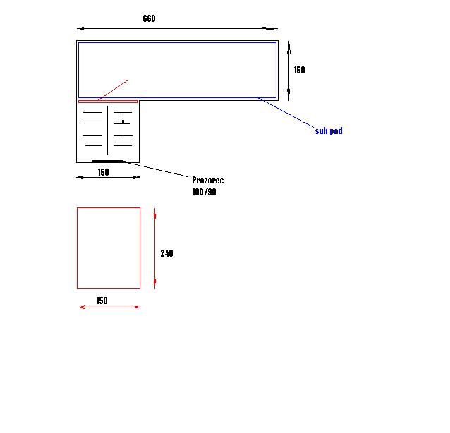
Прилагам схема с размерите на коридора и стълбищната клетка както и няколко снимки за да придобиете 3D впечатление
.
В момента коридорът е направен по системата сух под на Кнауф с 8 см настилка. Целите, които гоня са поостигане на шумоизолация и топлоизолация на таванския етаж чрез отделяне от стълбището. Дограмата ни е дървена и в този стил би следвало да направим преградата от дърво, но аз категорично съм против интериорно вътрешно решение. Искам да има хоризонтален долен профил и да се уплътни добре. Знаем много добре, че на високо шумовете се открояват по-отчетливо и искам да ги намаля.
Имам колебания в избора на подходящото решение в моят случай.
Вариант с дървена профилна дограма /като за външен монтаж/ предполагам ще е доста скъпо. Може би двойно пред ПВЦ..
Вариант с ПВЦ дограма - Поразгледах из интернет и бих се спрял на профил Саламандър /Streamline или решението каса Salamander Design 2D, крило Salamnder 3D/. Обков Сигения. Цвят орех, дъб /на място трябва да видя цветовете/. Може би двукамерен стъклопакет б/б/к 32 мм
. Говоря на прима виста. Конкретните модели на Саламандър първо ще ги видя на живо и ще реша. Комбинацията 2D/3D показват, че е в една равнина. Чесно казано се чудя как най-удачно да се разпредели преградата. Ще е хубаво да има една врата от 90-100мм за да могат да минат електроуредите за кухнята. Останалите неща/мебели... ще се качват разглобени, може и през балконските тераси с въже. Ще Ви пусна четири варианта на разпределение. Стълбищната клетка има прозорец 90/100мм, който гледа на север. Дали да влиза светлина от него до коридора или пък да е плътно. Все пак тази преграда/врата ще представлява входа към таванския етаж. Трябва да е със секрет.
Погледнах в интернет подобни решения и, по-скоро вариант с врата до горе по-добре би излеждало. Въпросът е дали да е цяло стъкло, разделено стъкло на 4 или с пълнеж. Може би вариант 3 ...? Вие какво мислите?
Гледайки прозорци тип VW се замислих дали в моя случай не би било добре. С плъзгаща врата ще се спести място за отваряне в коридора, но пък вратата трябва да е с лайсна към стената. Двете части/стъкла да не застават една зад друга а да се плъзга врата по стената. Не знам дали въобще има подобно техническо решение....
Впрочем на няколко пъти съм ползвал препоръчани специалисти от форума и съм много доволен. Ако се спра на варианта ПВЦ дограма с профил Саламандър може ли да ме насочите към читава фирма? Все пак качественият монтаж е доста важен.
Малко се поколебах дали да пусна темата в раздел "Саниране", но сметнах, че в този раздел ще е по-подходящо. Възнамерявам да отделя стълбищната клетка от таванския етаж за да стане независим..
Прилагам схема с размерите на коридора и стълбищната клетка както и няколко снимки за да придобиете 3D впечатление
В момента коридорът е направен по системата сух под на Кнауф с 8 см настилка. Целите, които гоня са поостигане на шумоизолация и топлоизолация на таванския етаж чрез отделяне от стълбището. Дограмата ни е дървена и в този стил би следвало да направим преградата от дърво, но аз категорично съм против интериорно вътрешно решение. Искам да има хоризонтален долен профил и да се уплътни добре. Знаем много добре, че на високо шумовете се открояват по-отчетливо и искам да ги намаля.
Имам колебания в избора на подходящото решение в моят случай.
Вариант с дървена профилна дограма /като за външен монтаж/ предполагам ще е доста скъпо. Може би двойно пред ПВЦ..
Вариант с ПВЦ дограма - Поразгледах из интернет и бих се спрял на профил Саламандър /Streamline или решението каса Salamander Design 2D, крило Salamnder 3D/. Обков Сигения. Цвят орех, дъб /на място трябва да видя цветовете/. Може би двукамерен стъклопакет б/б/к 32 мм
Погледнах в интернет подобни решения и, по-скоро вариант с врата до горе по-добре би излеждало. Въпросът е дали да е цяло стъкло, разделено стъкло на 4 или с пълнеж. Може би вариант 3 ...? Вие какво мислите?
Гледайки прозорци тип VW се замислих дали в моя случай не би било добре. С плъзгаща врата ще се спести място за отваряне в коридора, но пък вратата трябва да е с лайсна към стената. Двете части/стъкла да не застават една зад друга а да се плъзга врата по стената. Не знам дали въобще има подобно техническо решение....
Впрочем на няколко пъти съм ползвал препоръчани специалисти от форума и съм много доволен. Ако се спра на варианта ПВЦ дограма с профил Саламандър може ли да ме насочите към читава фирма? Все пак качественият монтаж е доста важен.
Прикачен файл
Разположение с размери.
Shema.JPG (17.3 KиБ) Видяна 4130 пъти
Прикачен файл
коридор
P1010031.JPG (96.54 KиБ) Видяна 4130 пъти
Прикачен файл
Преход между стълбището и коридора. Мястото на преградата.
P1010035.JPG (87.53 KиБ) Видяна 4130 пъти
