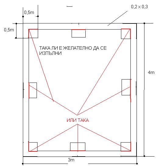
Здравейте!Може би мястото на въпроса ми е в раздел всичко за вилата,но мисля,че и тук ще ми помогнете.Та на въпроса-на мястото(бившо лозе)ще изграждам лека дървена постройка 3м на 4м(старата е грохнала,и ремонта ми се струва,че ще е по скъп от нова)и трябва да излея основи.Та питането е,основите на половина трябва да са вкопани(1 на снимката)или изцяло(2 на снимката).
Трябва ли да има стъпки,или не не обходимо.Арматура ще има задължително!Грешка размерите 0,2 и 0,3 са разменени!!!!
Трябва ли да има стъпки,или не не обходимо.Арматура ще има задължително!Грешка размерите 0,2 и 0,3 са разменени!!!!
Прикачен файл
3.JPG (29.4 KиБ) Видяна 10378 пъти
Прикачен файл
4.JPG (21.4 KиБ) Видяна 10378 пъти
