• 1
  • 2
  • 3
  • 4
  • 5
  • 6
  • 7
Предимства, недостатъци, цени, материали, планове, пасивни къщи и т.н.
Фитилчо - майстор
Имах предвид цената на тази от Ибей :-D
VLADO66 - майстор
Ами то стълбището ти е с такива размери :wink: И тези пари-виж колко по-голяма врата колко струва http://plast-market.net/product/275/vho ... ltest.html
prascho - майстор
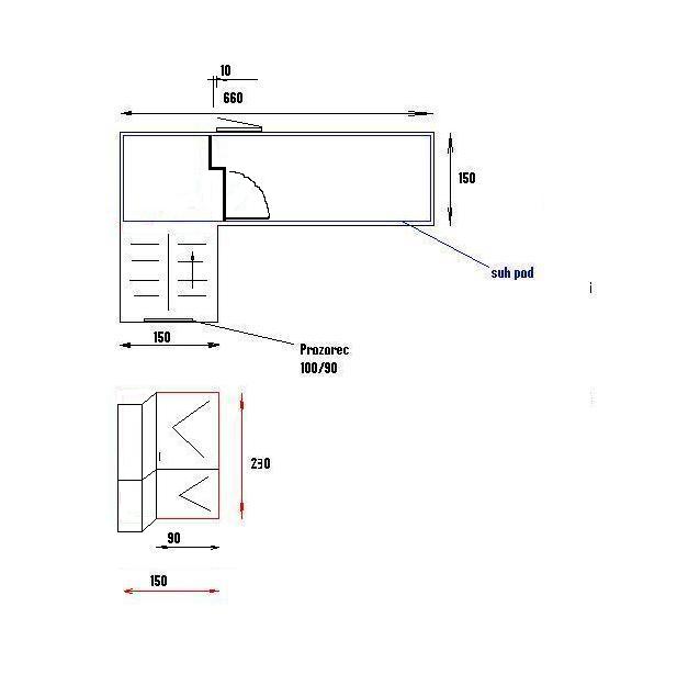
Владо: стълбищната клетка ни е тясно, ама какво да направя. Аз затова на Стан му казах, че повече мнения трябва да се търсят овреме, а не постфактум. Все пак се спрях на идеята да бъде с площадка в коридора. Така ще е по-удобно от гледна точка на безопасност при отваряне на вратата и слизане по стълбите /вариант от картинката на страница 2/.

Днес утре ще мина и през още една две фирми. Посочената цена, която виждаш на сайта на 'пласт маркет' не е обективна. Все пак става въпрос за различен продукт..Профил алтест е студен /без прекъсване/, посоченият стъклопакет е бяло-бяло, заложена е дръжка от едната страна с едностранно заключване. Моят вариант - профил с прекъсване, стъклопакет триплекс 331, аргон + 'к' стъкло и обков със заключване от двете страни с дръжки.

Ако имам възможност ще мина през тази фирма и ще посоча тяхната цена..но не вярвам да се различава от посочения интервал 750-1000 лв

П.П. Не знам дали е важно, но фирмите дават различна гаранция за обков, стъклопакет и профил...едни 5 години други 1 година. Може и да не е важно, не знам....
VLADO66 - майстор
Според мен не трябва ни К-стъкло,нито топъл профил ама ти си знаеш :)Вместо тези неща си направи портата с оцветен профил,да отива на вратите и да не прилича на поликлиника.
prascho - майстор
Владо, една от търговските представители /изказа, че има опит с дървена дограма/ сподели, че с цвят няма да го докарам до фона на дограмата. Най-хубаво да го направя бяло. Хем светлина придава белия цвят, хем и усещане за пространство. Много бързо минах на фаза бял цвят.../като добавиш и оскъпяване на концепцията с 20-40% в зависимост от цвета /.

пример: Грубо ако със студен профил струва 650 лв, то с цвят ще дам още 200 лв. Аз съм на мнение, че тези 200 трябва да ги вложа в топъл профил вместо в цвят...:).. след киснене в нета и аз вече не знам кое как... То най-хубаво с една дървена рамка и уплътнения...ама откъде майстор братче....
VLADO66 - майстор
Гледай цветове по RAL 3016 или 3020 а може и друг от картелката.Повярвай ми,бялото ще изглежда тъпо и не на място:) Има и още нещо-топлоизолационните качества на дограмата се проявяват при по-голяма разлика на температурата от двете страни на профила,а и топлото винати бяга нагоре :wink:
prascho - майстор
Мда и за това се замислих. Отгоре над коридора има 20 см минерална вата...Дори и при разлика в температурите от двете страни на профила, реално топлото по-високо трудно ще се качи /все пак става въпрос за таванско помещение/. Но се притеснявам от прозореца на стълбището, който гледа на север. От там ще влиза студ. Всъщност на стълбището са три малки прозореца 100х60 см.
prascho - майстор
Ще ми помогнете ли с едно сравнение на системи в зависимост от шумоизолацията:

- 'Е1000'; може да се монтира стъклопакет до 22 мм, като при вариант 331 + 11 + 4 бяло дават индекс на шумопоглъщането Rw=38 [dB]. Тази стойност доколкото разбирам е хубаво да бъде възможно по-висока. За сравнение при 4+15+4 /еднакви стъкла/ стойността е едва 34 [dB]. Тези 38 [dB] всъщност много ли са, малко ли са?

http://www.etem.bg/bg/product/15/E1000

- 'Аlbio 108'; производителят не е посочил никакви стойности, както и инфо с направен изпитателен тест.

http://www.exalco.bg/albio-108/

- при стъклопакет с дървена рамка със същите габарити /каса от 40 мм/ какви стойности на шумопоглъщането мога да очаквам?
prascho - майстор
Съфорумци оформи се още едно питане....

Под вратата на преградата как да се оформи конструкцията:
- да няма нищо, като завършва с едни реснички. Но в този случай какво би се случило с шумоизолацията ..
- да има праг от алуминиева лайсна /около 2 см/. Перото на вратата ще застъпи лайсната, но пък ще трябва да я прескачам.
- да има алуминиев профил /като този на рамката/. Той ще бъде с уплътнение и откъм шумоизолираност е най-добре. Височината обаче е около 40 мм. Ако монтирам касата преди гранитогреса ще се получи праг от около 2 см. Да не се спъвам в него?

В тази връзка кой вариант е по-удачен? Вие имате повече опит. Кога да се монтира конструкцията преди или след полагането на гранитогреса?
prascho - майстор
FYI

Прикачен файл

v2.JPG
v2.JPG (20.29 KиБ) Видяна 1877 пъти
  • 1
  • 2
  • 3
  • 4
  • 5
  • 6
  • 7

Тема "Отделяне на коридор от стълбищна клетка - преграда" | Включи се в дискусията:


Сподели форума:

Бъди информиран. Следвай "Направи сам" във Facebook:

Намери изпълнител и вдъхновения за дома. Следвай MaistorPlus във Facebook: