• 1
  • 21
  • 22
  • 23
  • 24
  • 25
  • 27
Предимства, недостатъци, цени, материали, планове, пасивни къщи и т.н.
emilvtc - специалист
Фло, искам да обсъдим и друга технология на строителството, така че моля те не бързай да "изоставяш" темата ...

На първо място е архитектурата, но тя е тясно свързана с технологията на построяването.
До момента почти имам разпределения за 4 варианта - едноетажна, двуетажна, етадноетажна+надзид и етаж и половина варианти, които трябва да оценя един спрямо друг. Целта на темата е точно тяхното обсъждане.
И тъй като себестойността и външният им вид зависи от технологията на строителството - от самосебе си се появиха и строителните материали и технологии...

Каква ти е идеята за нова и по-евтина технология, която да може да изкара поне 30-40 години.
Относно покрива със оставащия куфраж - ок. Вероятно покрива на гаража ми ще е така.
Относно стените ?

Всъщност независимо от технологията - до колкото разбирам основите и плочата на кота "0" са едни и същи като дълбочина и кубици бетон. Разликата е само в армировката ... Прав ли съм?

От тук нататък - стени, конструкция, покриви и др. зависи от технологията.
Варианти за стени:
1. Тухлени - стандартни, тип "сандвич" с вградена ТИ
2. Итонг
3. Бетонни с оставащ кофраж от EPS
4. панелни като на сглобяемите къщи
5. Термо-панели - ламаринени с пяна отвътре (незнам как точно се казват)
6. Пено-бетони и др. тухли с "вградена" ТИ (EPS топчета и др. подобни)
7. Екзотики като калени, глинени, сламени и др. подобни
Относно конструкцията:
1. Желязобетоннни колони и греди
2 .Дървени колони и греди
3. Метални колони и греди
Относно покрива:
1. Керемиди (керамични, бетонни, метални, полимерни)
2. Ондулин и др. битумни покрития
3. бетонни (с въпросния оставащ кофраж)
4. Термопанели (метал - ТИ-Метал)

И за да не приказваме празни приказки -добре ще е да можем да сравняваме отделните технологии една спрямо друга по параметри, предимства и слабости, сложност и специфики при строителството и не на последно место по цени.
Без по-горе описаното сравнение - инфото за тях би изглеждало като досадна реклама по БТВ ...

Можеш ли да допълниш този списък с ефективни и евтини материали и технологии?
(все пак да са съобразени за нашите климатични условия)

Поздрави
tetomaster - специалист
Аз ще пиша за покрива. Мой съвет е да си избереш между бетонни (Брамак), керамични(TONDACH), битумни (IKO), метални (ТЕТО,LINDAB). Подредил съм ги по маса (кг/m2). По точна цена ще ти направя, ако ми дадеш разпределението на последния етаж.
Tsilkov - майстор
emilvtc написа:
И за да не приказваме празни приказки -добре ще е да можем да сравняваме отделните технологии една спрямо друга по параметри, предимства и слабости, сложност и специфики при строителството и не на последно место по цени.
И после ще издадеш учебник по сградостроителство в 1200 страници и с твърди корици :lol: .Като те гледам си се засилил да изчислиш всички варианти дето са ти дошли на ума със всички технологии :shock: .В КСС-то ти липсват поне още 200-300 позиции(покрива приемрно не се състои от 2 ,а поне от 12),а в същото време бетона си го нацепил по етажи,части......Не виждам смисъла на тоя колосален труд с неизвестен краи - архитектурните варианти можеш да ги сравниш и без да им правиш въпросното "вяло КСС" - просто трябва да сложиш чертежите един до друг и да ги разгледаш и съпоставиш.За мен просто от сега първоначалния ти вариант спрямо следващите два е безпредметно изобщо да го гледаш.
VLADO66 - майстор
Малко офтопик-IKO е хубава битумна керемида с цял лепителен слой/а не само на ивички като при другите/.Сложил съм ги на покрив 12 градуса и стоят като вулканизирани- вече 7 ма година никакъв проблем и не пада посипката.Мисълта ми е ,че могат да се слагат на по-полегати покриви което си е икономия и седи по-красиво от рулата.
emilvtc - специалист
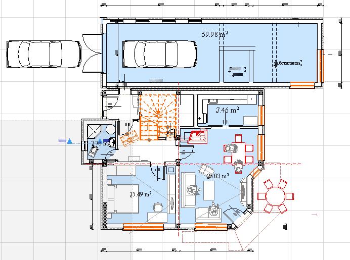
Работя в момента по този вариант.

Разбира се архитекта ще "очовечи" и направи читаво това, което съм начертал.
Опитах се да направя покрива четирискатен (както ме посъветвахте), но нещо не ми се получава. В архитекта ми е надеждата :)

А-бе в този вариант на къщата се придържам стриктно към "трафопостната" архитектура :-D

Опитвам се да направя така, че "пътя на обувките" да не пресича "пътя на чехлите", но някак си ми се струва странно входа да е до гаража ... :? Всъщност не съм виждал подобно решение и не мога да си го представя как би се получило. Има и проблем с вътрешните 2 стъпъла в антрето и вътрешната преградна врата :?

Прикачен файл

Kysta_6_2_1.JPG
Kysta_6_2_1.JPG (70.34 KиБ) Видяна 4943 пъти

Прикачен файл

Kysta_6_2_2.JPG
Kysta_6_2_2.JPG (51.94 KиБ) Видяна 4943 пъти

Прикачен файл

Kysta_6_2_1_3D.JPG
Kysta_6_2_1_3D.JPG (71.21 KиБ) Видяна 4943 пъти

Прикачен файл

Kysta_6_2_1A.JPG
Kysta_6_2_1A.JPG (67.54 KиБ) Видяна 4943 пъти
Tsilkov - майстор
emilvtc написа:
но някак си ми се струва странно входа да е до гаража ... :?
Какво ти е странното?Слизаш от колата ,или идваш от работилницата и си събуваш мръсните обувки и си закачаш якето в антрето - няма нищо по-естествено от това.Не разбирам защо рпавиш малките стъпълца - гаража го вдигни на нивото на къщата - нали и той не трябва да се наводнява - няма да го зарибяваш я :lol:.В дневната излизането навън трябва да ти е от чупката при трапезарската маса ,а не при дивана.
VLADO66 - майстор
Не било толкова сложно.Стълбището го развий наобратно,така можеш/евентуално/ да използваш част от ст.клетка ,изнеси род.спалня/източната/с еркер навън и виж дали може да вместиш гардеробно.
Tsilkov - майстор
Ето ти малко вдъхновение за етаж и етаж и половина (ама истински :lol: )
на един етаж http://www.archdaily.com/160719/doughnu ... gn-office/
етаж и половина http://www.archdaily.com/166831/a-new-n ... tennessee/
ArturDent - Почти Безобиден
emilvtc, що постоянно го цвъкаш тоя гараж.
Трябва ти сметка - колко ти струва колата и колко ще ти струва гаража...
Пък и колите са предвидени да стоят навън....
emilvtc - специалист
ArturDent написа:
emilvtc, що постоянно го цвъкаш тоя гараж.
Трябва ти сметка - колко ти струва колата и колко ще ти струва гаража...
Пък и колите са предвидени да стоят навън....
Карам кола, която струва 3500лв и гаража не ми трябва за да си я пазя в него.
"Краста" ми е сам да си "ровя" по колата и искам да имам приятно местенце за целта.
Гледам на него и като на складова площ. Една селска къща си иска площ и за натуриите ...
Мисля даже площта под гаража с не съвсем удобен достъп през канала му да се използва като складова... Не ми е съвсем изкристализирала идеята за това, но съм виждал подобно изпълнение. Зимата при -10 градуса навън гаража се "отопляваше" през канала от земята чрез помешението под него и температурите в него бяха положителни.
  • 1
  • 21
  • 22
  • 23
  • 24
  • 25
  • 27

Тема "Идеен проект за къща" | Включи се в дискусията:


Сподели форума:

Бъди информиран. Следвай "Направи сам" във Facebook:

Намери изпълнител и вдъхновения за дома. Следвай MaistorPlus във Facebook: