Чакаме вашите въпроси за банята, ваната и т..н.
michael78 - специалист
Здравейте,
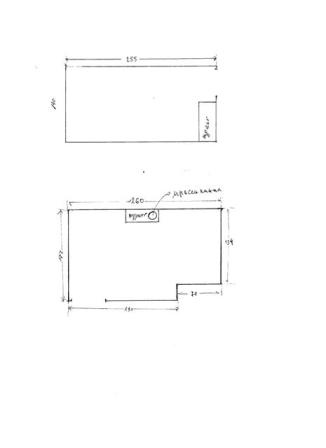
Нуждая се от вашата помощ. Трябват ми свежи идеи за разпределението в двете бани на строящия ми се апартамент. Уж има две бани по около 4м2, пък няма място къде да сложа вана. АКо някой може да ми даде съвет как да подредя тези помещения, ще съм много благодарен. И в двете бани трябва да им и тоалетни освен мивката и отделението за къпане.благодаря ви предваритело.

Прикачен файл

bani.jpg
bani.jpg (6.46 KиБ) Видяна 2078 пъти
n_a - МАЙСТОРИЩЕ
Answers: 1
Не се четат размерите. Би ли ги дал отделно.
michael78 - специалист
Извинявам се много. Когато промених параметрите на снимката, според изискванията, размерите станаха неясни.утре ще кача по-ясен план. Все пак размерите на първата баня са 140см/250см, а на втората:
170/260/130/70 + 190см.

Тема "помощ за разпределението в две бани" | Включи се в дискусията:


Сподели форума:

Бъди информиран. Следвай "Направи сам" във Facebook:

Намери изпълнител и вдъхновения за дома. Следвай MaistorPlus във Facebook: