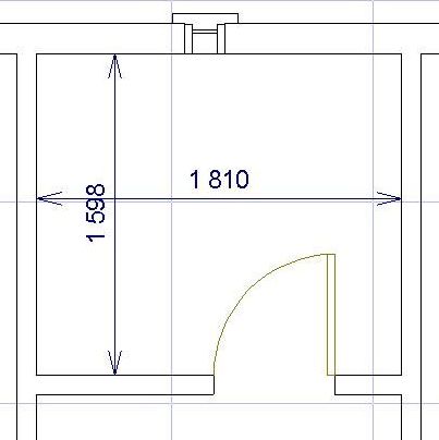
Здравейте, скоро ще трябва да започнем ремонта на новопридобития си апартамент и решихме първото нещо да е банята. Та исках да попитам за идея, т.к. много ми се иска да има вана, ама много
. Но и не искам да е супер тясна. Мислите ли, че може да стане? Прилагам и схема на банята
P.S. 1.60х1.80 е, ама нещо не мога да се разбера с Interior Designer-а
P.S. 1.60х1.80 е, ама нещо не мога да се разбера с Interior Designer-а
Прикачен файл
Баня
new5.jpg (13.94 KиБ) Видяна 10036 пъти


