Имам един лаишки въпрос: може ли да се сменя мястото на мивката и тоалетната от канализационна гледна точка? Понеже банята на апартамента, чийто горд собственик ще съм след две седмици, е много дребна, почти като на inian. Тоалетната е сбутана в единия ъгъл, човек направо го хваща клаустрофобията като я види дори в кьошето, камо ли да тръгне да я използва. А мивката е в другия ъгъл, на близо два пъти по-широко място, от което определено не се нуждае. Ще сменям тръбите така или иначе и се чудя дали водопроводчикът може да размени местата им, какво ще кажете?
Чакаме вашите въпроси за банята, ваната и т..н.
Антония
- специалист
51 мнения в "Канализация в малка баня и възможност за преустройство"
Антония
- специалист
- Мнения: 316
Ухф, гадно
Значи ще се търси миниатюрна тоалетна чиния
На всичко отгоре точно по средата на дългата (условно казано) страна са шибнали комин 50х60 см, та и него трябва да заобикаляме. Обмислям вариант да го изтъним малко, ама майсторите ме убеждават, че бил от бетон и не подлежал на обработка. Което ми е странно, все пак апартаментът е от тухли, защо точно пустия комин ще го правят бетонен?!?
Както и да го мисля, все не се получава разпределението. Накрая ще се окаже, че душът ще е върху мивката или тоалетната чиния
Както и да го мисля, все не се получава разпределението. Накрая ще се окаже, че душът ще е върху мивката или тоалетната чиния
Антония
- специалист
- Мнения: 316
С мойте две леви ръце каква схема ще направя...
Ама се хващам сега. Надявам се до половин час да успея да нарисувам три пръвоъгълника като хората
И да кажа "Извинявай" на inian, не исках да разводнявам нейната тема, просто понеже и моите проблеми са сходни реших, че ще е удачно да обсъждаме всичко накуп
И да кажа "Извинявай" на inian, не исках да разводнявам нейната тема, просто понеже и моите проблеми са сходни реших, че ще е удачно да обсъждаме всичко накуп
Антония
- специалист
- Мнения: 316
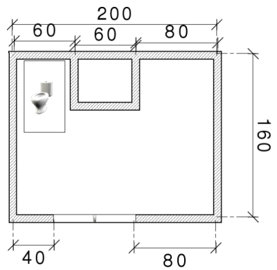
Така... Ето я моята баня. За съжаление, изключително неумела съм с програмите за чертаене, та не открих как точно се нагласяват стените. Но мисля, че в общи линии е ясно, нали? Не нарисувах душа и мивката, защото местата им са плаващи -- така или иначе ще къртим всичко и ще сменяваме тръбите.
В момента душът е в ляво от вратата, до тоалетната. Мивката е от дясно на вратата, точно до комина. Самата врата е талашитена и раздута, ще я сменявам непременно. Мисля си за плъзгаща се врата, като се изкушавам да намаля размера й от 80 на 70 сантиметра. У дома сме фини гаджета, няма да се затрудняваме да минаваме и през по-тесни процепи
Идеалният вариант А беше: душът да е на мястото на тоалетната, тоалетната да е на мястото на мивката, а мивката да е срещу тоалетната. Ако каналът на тоалетната не може да се мести, ще се мине на вариант Б: тоалетната остава на зафичканото кьоше, мивката минава срещу нея (на мястото на сегашния душ), а душът минава от другата страна на комина. Кофтито е, че както и да въртя трите задължителни елемента -- все тоалетната е най-сгъчката
В момента душът е в ляво от вратата, до тоалетната. Мивката е от дясно на вратата, точно до комина. Самата врата е талашитена и раздута, ще я сменявам непременно. Мисля си за плъзгаща се врата, като се изкушавам да намаля размера й от 80 на 70 сантиметра. У дома сме фини гаджета, няма да се затрудняваме да минаваме и през по-тесни процепи
Идеалният вариант А беше: душът да е на мястото на тоалетната, тоалетната да е на мястото на мивката, а мивката да е срещу тоалетната. Ако каналът на тоалетната не може да се мести, ще се мине на вариант Б: тоалетната остава на зафичканото кьоше, мивката минава срещу нея (на мястото на сегашния душ), а душът минава от другата страна на комина. Кофтито е, че както и да въртя трите задължителни елемента -- все тоалетната е най-сгъчката
Прикачен файл
Скица на баня 200х160 см с гаден комин 50х60 см по средата
bath.jpg (37.5 KиБ) Видяна 7161 пъти
Последна промяна от Антония на съб яну 19, 2008 9:45 am, променено общо 1 път.
Тема "Канализация в малка баня и възможност за преустройство" | Включи се в дискусията:
Сподели форума:
Бъди информиран. Следвай "Направи сам" във Facebook:
Намери изпълнител и вдъхновения за дома. Следвай MaistorPlus във Facebook:
Имаш нужда от подходящ професионалист за дома?
- Преустройство, ремонт и реновиране
- ↳ Вашите ремонти
- ↳ Кухня
- ↳ Баня
- ↳ Дневна
- ↳ Спалня
- ↳ Детска
- ↳ Градина
- ↳ Коридор
- ↳ Тераса и балкон
- Направи сам
- ↳ Направи сам
- ↳ Ремонтирай сам
- ↳ Къде е по-евтино?
- ↳ Дърводелство
- ↳ Ел. инструменти
- ↳ Металообработване
- ↳ Конкурс "Направи сам 2012"
- Строителство
- ↳ Всичко за вилата
- ↳ Къщи
- ↳ Саниране
- ↳ Хидроизолация
- ↳ Пасивни и нискоенергийни сгради
- Сухо строителство
- ↳ Окачени тавани
- ↳ Преградни стени и предстенни обшивки
- ↳ Сухи и повдигнати подове
- ↳ Декоративни елементи - колони, трегери, сводове и др.
- ↳ Всичко за гипскартона и гипсфазера
- Въпроси и Отговори
- ↳ Полезни съвети
- ↳ Автомобили
- ↳ Партньори
- ↳ Боядисване и Декориране
- ↳ Вентилация, климатици и термопомпи
- ↳ Водоснабдяване и канализация.
- ↳ Всичко за ремонта
- ↳ Електротехника
- ↳ Отопление
- ↳ Газификация
- ↳ Електроника и Схеми
- ↳ Газобетон
- ↳ От всичко по малко
- ↳ Компютри и периферия
- ↳ Уеб дизайн, PHP, MySQL, JavaScript, HTML..
- ↳ Мобилни устройства, GSM-и
- ↳ Нека се запознаем
- ↳ Recycle Bin
- Статии
- ↳ Практични решения
- ↳ Качване на снимки
- ↳ Какви статии искате?
- ↳ Готварство, туршии и зимнина
- ↳ Отмора и шеги
- ↳ От нищо нещо
- ↳ Не е за вярване
- ↳ Литература
- ↳ Връзки към Интересни сайтове
- Магазин
- ↳ Препоръки и Мнения за он-лайн магазина
- ↳ Крадeни инструменти !!!

