Помогнете с избора на добър майстор
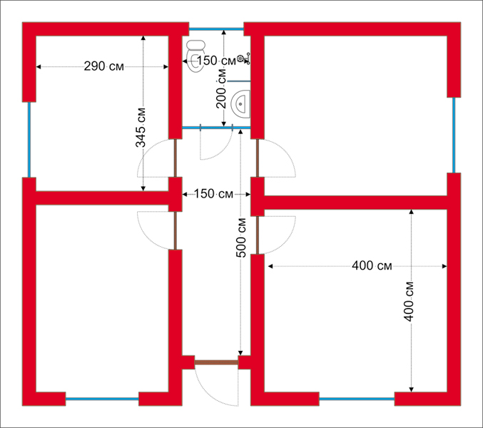
Става дума за лепене на ~ 34 м2, китайски гранит в коридор и две стаи.
И малка баня, ~ 20 м2 заедно със стените.
Става дума за лепене на ~ 34 м2, китайски гранит в коридор и две стаи.
И малка баня, ~ 20 м2 заедно със стените.
Прикачен файл
Лепене-на-плочки.jpg (79.75 KиБ) Видяна 2472 пъти
