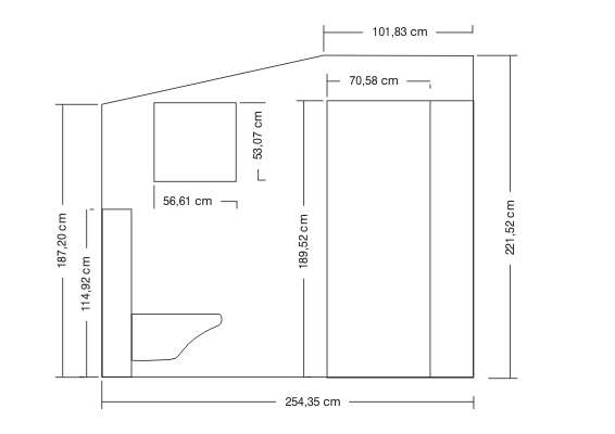
Предстои ми цялостен ремонт на баня и кухня, за сега въпросът ми е за банята. размерите са 2.50 на 1.80м. Таванът ми е скосен.
Тази баня съм я правил сам преди десетина години (по времето на хиперинфлацията) с минимум средства, максимум труд и не толкова голямо въображение. Основният проблем са мухъла (няма вентилатор), силният конденз по дъното на казанчето + меката връзка и че при поддушово корито със завеса банята пак се мокри доста (смесителят е при мивката). Ще се изкъртят плочките, мазилката над тях и на тавана (бетонен за съжаление). Ще напръскам с противомухълно средство, а след това на тавана и стените – изолация вата, влагоустойчив гипскартон и плочки. Казанчето ще е вградено (Grohe) и тоалетната конзолна (на Коло). Понеже ще правя (майсторите де) изградено от плочки поддушово корито със стъклен параван, мислех, че идейното свързване между керамиката на тоал.казанче и стъклото на паравана би било добре да стане с керамична мивка вградена в стъклен плот. Ще сложа и вентилатор за санитарни помещения с датчик за влага и време. Изпращам снимки на сегашното положение и чертеж на планираното преустройство. Уточнявам, че пералнята няма да бъде в банята. Освен удачността на новото разположение, доста ме притесняват някои “дребни” детайли, като например:
1. как се прави уплътняването на вратата на паравана, за да не излиза водата навън;
2. къде да се окачва хавлията, за да е удобна за вземане след излизане от душ-кабината;
3. дали при вграждането на няколко лунички (над душ-кабината, над мивката) няма да се просмуква влага към тавана;
Тази баня съм я правил сам преди десетина години (по времето на хиперинфлацията) с минимум средства, максимум труд и не толкова голямо въображение. Основният проблем са мухъла (няма вентилатор), силният конденз по дъното на казанчето + меката връзка и че при поддушово корито със завеса банята пак се мокри доста (смесителят е при мивката). Ще се изкъртят плочките, мазилката над тях и на тавана (бетонен за съжаление). Ще напръскам с противомухълно средство, а след това на тавана и стените – изолация вата, влагоустойчив гипскартон и плочки. Казанчето ще е вградено (Grohe) и тоалетната конзолна (на Коло). Понеже ще правя (майсторите де) изградено от плочки поддушово корито със стъклен параван, мислех, че идейното свързване между керамиката на тоал.казанче и стъклото на паравана би било добре да стане с керамична мивка вградена в стъклен плот. Ще сложа и вентилатор за санитарни помещения с датчик за влага и време. Изпращам снимки на сегашното положение и чертеж на планираното преустройство. Уточнявам, че пералнята няма да бъде в банята. Освен удачността на новото разположение, доста ме притесняват някои “дребни” детайли, като например:
1. как се прави уплътняването на вратата на паравана, за да не излиза водата навън;
2. къде да се окачва хавлията, за да е удобна за вземане след излизане от душ-кабината;
3. дали при вграждането на няколко лунички (над душ-кабината, над мивката) няма да се просмуква влага към тавана;
Прикачен файл
3.jpg (30.97 KиБ) Видяна 5569 пъти
Прикачен файл
2.jpg (43.69 KиБ) Видяна 5569 пъти
Прикачен файл
banja1.jpg (40.97 KиБ) Видяна 5569 пъти
Прикачен файл
banja3.jpg (38.02 KиБ) Видяна 5569 пъти
Прикачен файл
banja4.jpg (49.17 KиБ) Видяна 5569 пъти
