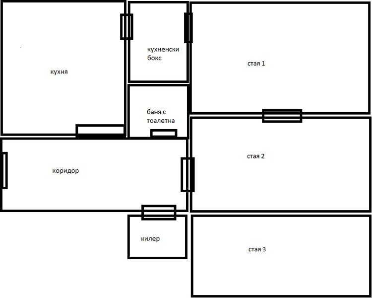
Имам въпрос относно този апартамент.Той е старо строителство .Всички стаи са преходни с изключение на килера и на тоалетната.Търся идеи за преустройство ,като зазиждане на врати и правене на стаите самостоятелни.Горе долу имам някакво собствено мнение по въпроса но търся и други идеи.Благодаря предварително.Само да вмъкна че трябва да има най малко една спалня, детска и всекидневна с кухня.
- 1
- 2
Чакаме вашите въпроси за банята, ваната и т..н.
diduli
- специалист
14 мнения в "Разположение на апартамент"
niki_sap
- специалист
- Мнения: 450
Ако кажеш и къде има прозорци, на къде гледат стаите и кои стени със сигурност не могат да се бутат би било супер.
На пръв поглед ми изглежда логично кхнята да стане самостоятелна стая, бокса, стая 1 и стая 2 да са хол трапезария и кухня, а стая 3 да си остане стая, която или да е преходна или да се отвори през килера към коридора.
На пръв поглед ми изглежда логично кхнята да стане самостоятелна стая, бокса, стая 1 и стая 2 да са хол трапезария и кухня, а стая 3 да си остане стая, която или да е преходна или да се отвори през килера към коридора.
ribnikolaevi
- майстор
- Мнения: 2247
Това мащабно ли е?
Дай размери.
Дай размери.
diduli
- специалист
- Мнения: 148
Не това е на око.Още не съм взел точни размери.Мочта идея е кухнята остава самостоятелна спалня примерно.бокса и банята стават по голяма баня и тоалетна с прозорец.Стая 1 става детска стая.Стая 2 и 3 всекидневна с кухня.Обаче как да се направи така че детската да е със самостоятелен вход ??????? 
Vladimir GG
- напреднал
- Мнения: 25
Ако искаш детска стая със самостоятелен вход - не стая 1, а кухнята ще трябва да стане детска стая.
От друга страна, аз на твое място бих се опитал да открия всички предимства на това разположение и, ако се уверя, че не става драстично - чак тогава бих се впускал във ВиК и др. авантюри.
Кога е строен тоз апартамент.
Архитектите по време на Трето българско царство са впрягали и акъл и образование и са имали достатъчно и от двете ...
Дръж ни на течение
От друга страна, аз на твое място бих се опитал да открия всички предимства на това разположение и, ако се уверя, че не става драстично - чак тогава бих се впускал във ВиК и др. авантюри.
Кога е строен тоз апартамент.
Архитектите по време на Трето българско царство са впрягали и акъл и образование и са имали достатъчно и от двете ...
Дръж ни на течение
тото
- специалист
- Мнения: 53
Без размери стрелям на тъмно, но ето един вариант.
Ако конструкцията позволява махаш/преместваш съществуващата стена м/у коридора и стая2. Така вече имаш достъп от коридора и до стаи 1 и 3.
Кухнята си остава кухня, бокса-бокс, стаи 2 и 3 - спалня и детска, като затваряш портала. Стая 1 може да е хол/всекидневна, като вратата към кухнята може и да остане, но може и да се затвори.
Ако конструкцията позволява махаш/преместваш съществуващата стена м/у коридора и стая2. Така вече имаш достъп от коридора и до стаи 1 и 3.
Кухнята си остава кухня, бокса-бокс, стаи 2 и 3 - спалня и детска, като затваряш портала. Стая 1 може да е хол/всекидневна, като вратата към кухнята може и да остане, но може и да се затвори.
Прикачен файл
1.jpg (42.78 KиБ) Видяна 4370 пъти
- 1
- 2
Тема "Разположение на апартамент" | Включи се в дискусията:
Сподели форума:
Бъди информиран. Следвай "Направи сам" във Facebook:
Намери изпълнител и вдъхновения за дома. Следвай MaistorPlus във Facebook:
Имаш нужда от подходящ професионалист за дома?
- Преустройство, ремонт и реновиране
- ↳ Вашите ремонти
- ↳ Кухня
- ↳ Баня
- ↳ Дневна
- ↳ Спалня
- ↳ Детска
- ↳ Градина
- ↳ Коридор
- ↳ Тераса и балкон
- Направи сам
- ↳ Направи сам
- ↳ Ремонтирай сам
- ↳ Къде е по-евтино?
- ↳ Дърводелство
- ↳ Ел. инструменти
- ↳ Металообработване
- ↳ Конкурс "Направи сам 2012"
- Строителство
- ↳ Всичко за вилата
- ↳ Къщи
- ↳ Саниране
- ↳ Хидроизолация
- ↳ Пасивни и нискоенергийни сгради
- Сухо строителство
- ↳ Окачени тавани
- ↳ Преградни стени и предстенни обшивки
- ↳ Сухи и повдигнати подове
- ↳ Декоративни елементи - колони, трегери, сводове и др.
- ↳ Всичко за гипскартона и гипсфазера
- Въпроси и Отговори
- ↳ Полезни съвети
- ↳ Автомобили
- ↳ Партньори
- ↳ Боядисване и Декориране
- ↳ Вентилация, климатици и термопомпи
- ↳ Водоснабдяване и канализация.
- ↳ Всичко за ремонта
- ↳ Електротехника
- ↳ Отопление
- ↳ Газификация
- ↳ Електроника и Схеми
- ↳ Газобетон
- ↳ От всичко по малко
- ↳ Компютри и периферия
- ↳ Уеб дизайн, PHP, MySQL, JavaScript, HTML..
- ↳ Мобилни устройства, GSM-и
- ↳ Нека се запознаем
- ↳ Recycle Bin
- Статии
- ↳ Практични решения
- ↳ Качване на снимки
- ↳ Какви статии искате?
- ↳ Готварство, туршии и зимнина
- ↳ Отмора и шеги
- ↳ От нищо нещо
- ↳ Не е за вярване
- ↳ Литература
- ↳ Връзки към Интересни сайтове
- Магазин
- ↳ Препоръки и Мнения за он-лайн магазина
- ↳ Крадeни инструменти !!!

