• 1
  • 2
Чакаме вашите въпроси за банята, ваната и т..н.
Velio - специалист
Здравейте,
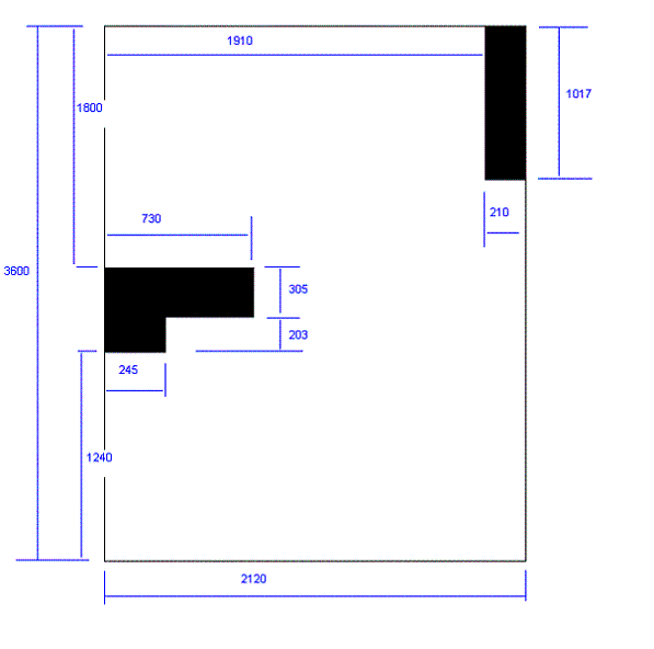
на схемата съм дал размерите на помещението, на което искам да
направя такъв таван. Черните линии са стените, а сините - размерите в мм. Мисля да използвам панелите, които са по 84мм и заедно с "лентичките" - 16мм - правят 100мм.(Luxalon 84R)
Имам желание панелите да се редят на късата страна т.е. да са по 2120мм.
В този случай обаче незнам колко на брой трябва да са ми гребените и как трябва да са разположени спрямо размерите и специфичните чупки на помещението.
Гледам, разстоянието от стените трябвало да е 150мм... а между гребените 1500мм
Моля за помощ. Дайте съвети. Благодаря!

Прикачен файл

duglas.GIF
duglas.GIF (11.62 KиБ) Видяна 8636 пъти
Velio - специалист
Така...след дълго чудене от кое по колко и къде да се монтира...материалите вече ги набавих, сега ще трябва да започвам тези дни с монтажа... Въпроси:
1 Тези П -профили (декоративните) в крайна сметка захващат ли се за стената (в моя случай - плочките)? Според мене си трябва захващане. Взел съм fisher UX 6X50 R ? Дали не са много дълги?
2 Между профилите и плочките трябва ли да мажа със санитарен силикон?
Няма ли някой, който е правил такъв таван да сподели опит? Благодаря предварително!
8180 - майстор
По т.1: Аз го правих (единствен път) без да ги хващам П-профилите, което за мен като аджамия, беше доста удобно. Естествено, трябва за всяка ламела да се осигурят поне 2 гребена. Ламелите са достатъчно леки за да висят само към тавана, а възможността за реглаж "до последно" си е предимство.
Леанардо, който има повече опит беше на обратното мнение, но окончателно не се изказа тогава, пък напоследък нещо не се мярка.
Изчакай евентуално др. колеги за съвет. Не е изключено при теб да стане и комбинирано при колоната в средата.

По т.2: Според мен със/без силикон зависи какво ще има отгоре. Ако е например вата за ТИ може да се наложи. Иначе - все тая, ако не търсиш някакъв декоративен ефект. Ако П-профилите останат висящи по-добре без силикон.

П.П. Не каза дали ще ползваш коментираните в линка окачвачи (телове+пеперуда) за дистанция от същинския таван. За тях се препоръчват метални анкери. Много удобно се набиват с чук и директно захващат ухото на горния тел.
http://www.steeldesign.bg/bg/marki/tool ... 1&select=2
Поначало в такива конструкции пластмасовите май са забранени - при евентуален пожар!!??
Аз избягвам типа който си взел - предпочитам при възможност т.нар. "проходни". Показаните, пирон-дюбелите и др. са такива - целият дюбел минава ПРЕЗ монтирвания детайл.
Velio - специалист
8180 написа:
П.П. Не каза дали ще ползваш коментираните в линка окачвачи (телове+пеперуда) за дистанция от същинския таван. За тях се препоръчват метални анкери. Много удобно се набиват с чук и директно захващат ухото на горния тел.
http://www.steeldesign.bg/bg/marki/tool ... 1&select=2
Поначало в такива конструкции пластмасовите май са забранени - при евентуален пожар!!??
Аз избягвам типа който си взел - предпочитам при възможност т.нар. "проходни". Показаните, пирон-дюбелите и др. са такива - целият дюбел минава ПРЕЗ монтирвания детайл.
Да, такива окачвачи ще ползвам. Метални анкери - задължително! Аз дори таваните от гипсокартон си ги правих с такива метални анкери.

Я дай някакъв линк за тези дюбели които предпочиташ.
8180 - майстор
Единия вид съм го дал по-горе.
Иначе тук:
http://www.steeldesign.bg/bg/marki/tool ... 1&select=1

От показаната позиция надолу до тези за изолации. Почти винаги вървят комплект с метала. Тънкият момент е че можеш да монтираш ПРЕЗ материала - отворите в материала и стената да са еднакви, а шапката на дюбела и винта да покрият отвора. С обикновените дюбели в подобен случай трябва някаква шайба или по-малък отвор в материала, сваляне, белязане, точно пробиване.

Фирмата е избрана "случайно" заради картинките - нямам конкретно мнение.
Velio - специалист
Ясно. Разбрах те :)
6aman - напреднал
Здравей,
направих си в гаража с Хънтър, и то в един скосен свод. Това , което не съобразих , да ли разстоянията към всяка една стена бе еднакво. След като го наредих целия, разбрах че ми "бягат" 2 см от единия край и ми се наложи да изравнявам, а целия Хънтър на ново да го пренареждам. Ако не се съобрази накрая трябва да се режи на криво, което загрозява цялата изработка.
Velio - специалист
Днес окрайчих банята с П-профилите.

Изникнаха няколко въпроса в главата ми:
- Как точно се срещат гребена и П-профила на перпендикулярната стена?
Понеже горното перо на П-профила пречи на гребена. Може би трябва да се реже?
- Не съм използвал силикон между П-профилите и фаянса. Чудя се дали да не мина П-профила от към страната на таванната плоча, след като вече е закрепен, със силикона?
Не че има какво да се види толкова , ама ето 2 снимки :)

Едит:
- Оказва се че няма да мога да ползвам окачвачите и пеперудите, понеже искам да снема тавана с 8 см, а с тях не може да се получи снемане по-малко от около 11см...Сега се чудя дали да не използвам окачвачи за гипсокартон или някаква тел :)

Прикачен файл

banq1.jpg
banq1.jpg (59.92 KиБ) Видяна 7768 пъти

Прикачен файл

banq2.jpg
banq2.jpg (61.01 KиБ) Видяна 7768 пъти
Velio - специалист
Ето и резултата:)

Прикачен файл

Tavan.jpg
Tavan.jpg (69.24 KиБ) Видяна 7545 пъти
  • 1
  • 2

Тема "Въпроси за Хънтър Дъглас :?:" | Включи се в дискусията:


Сподели форума:

Бъди информиран. Следвай "Направи сам" във Facebook:

Намери изпълнител и вдъхновения за дома. Следвай MaistorPlus във Facebook: