Здравейте,
След четене на цялата тази тема и първите успешни (според мен) опити да направя за дечко бюрце и едно шкафче считам, че мога да продължа и по-нататък, но с Ваша помощ. Имам следните въпроси.
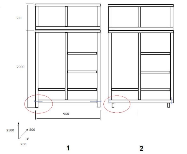
Коя конструкция да избера - 1 или 2. Става дума за начина, по който сандъка ще "стъпва" на земята. За шкафчето избрах вариант 2, защото то ще влиза в ниша и по този начин не опира в первазите. Дали и за гардероба да приложа това по същите причини? Разбира се отпред ще има челна дъска (перваз) или както там се казва. Най-долните отделения на гардероба са за чекмеджета. Горната част (580 мм) ще бъде надстройка.
И още нещо, което искам да уточня. Гнездата за пантите за вратите ги правя с фреза 35 мм с дрелката и шаблон на Hettich от Практикер за към 3 лв. С какви обороти би трябвало да се прави гнездото?
Малко пояснения за мебелите. Става дума за стандартно ПДЧ 18 мм. Смятам си разкроя, кантовете. Правя поръчка и в къщи започвам сглобяването със съвсем подръчни инструменти - дрелка с регулируеми обороти (и вместо винтоверт), фрезичка за фрезенк, винтове и т.н. Първия път не сгреших нито един размер и не съм ползвал "зеге"то си. Вече се "облизвам" за диблачка. ;)
Garderob.jpg (54.57 KиБ) Видяна 5787 пъти
След четене на цялата тази тема и първите успешни (според мен) опити да направя за дечко бюрце и едно шкафче считам, че мога да продължа и по-нататък, но с Ваша помощ. Имам следните въпроси.
Коя конструкция да избера - 1 или 2. Става дума за начина, по който сандъка ще "стъпва" на земята. За шкафчето избрах вариант 2, защото то ще влиза в ниша и по този начин не опира в первазите. Дали и за гардероба да приложа това по същите причини? Разбира се отпред ще има челна дъска (перваз) или както там се казва. Най-долните отделения на гардероба са за чекмеджета. Горната част (580 мм) ще бъде надстройка.
И още нещо, което искам да уточня. Гнездата за пантите за вратите ги правя с фреза 35 мм с дрелката и шаблон на Hettich от Практикер за към 3 лв. С какви обороти би трябвало да се прави гнездото?
Малко пояснения за мебелите. Става дума за стандартно ПДЧ 18 мм. Смятам си разкроя, кантовете. Правя поръчка и в къщи започвам сглобяването със съвсем подръчни инструменти - дрелка с регулируеми обороти (и вместо винтоверт), фрезичка за фрезенк, винтове и т.н. Първия път не сгреших нито един размер и не съм ползвал "зеге"то си. Вече се "облизвам" за диблачка. ;)
Прикачен файл:
Garderob.jpg (54.57 KиБ) Видяна 5787 пъти

