Здравейте
Решил съм да преустроя апартамент (на шпакловка и замазка), като от кухнята направа спалня, а от хола - дневна+кухненски бокс.
Долу съм показал общата схема, както и идеята ми за дневната. Мисля част от стаята да е с теракот, другата с ламинат. Мястото е малко, затова мисля да остъкля терасата и да изнеса печката и аспиратора там. Какво ще кажете за разпределението на мивката, пералнята, печката и хладилника? Може ли да се измисли някакво по-добро решение за това тясно пространство от това което съм направил на 2те картинки?
Мерси
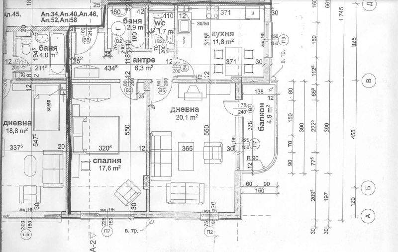
Решил съм да преустроя апартамент (на шпакловка и замазка), като от кухнята направа спалня, а от хола - дневна+кухненски бокс.
Долу съм показал общата схема, както и идеята ми за дневната. Мисля част от стаята да е с теракот, другата с ламинат. Мястото е малко, затова мисля да остъкля терасата и да изнеса печката и аспиратора там. Какво ще кажете за разпределението на мивката, пералнята, печката и хладилника? Може ли да се измисли някакво по-добро решение за това тясно пространство от това което съм направил на 2те картинки?
Мерси
Прикачен файл
obsht vid2.jpg (78.05 KиБ) Видяна 5770 пъти
