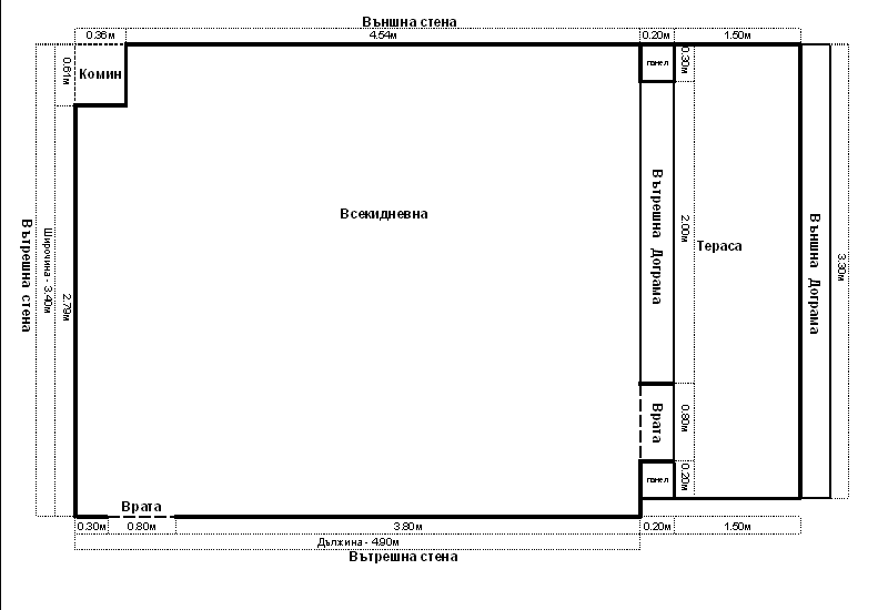
Това е скица на всекидневната (панелка). Тенденцията е да се ползва и за спалня. Какво е вашето виждане за обзавеждане. Мислех някъде да сложа падащо легло спалня, но ще ми е интересно да чуя и някои ваши виждания. Благодаря предварително за мненията 
Прикачен файл
123.GIF (10.62 KиБ) Видяна 7107 пъти