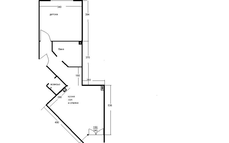
ПРИВЕТ НА ВСИЧКИ.НУЖДАЯ СЕ ОТ ПОМОЩ.КУПИХ ЖИЛИЩЕ-НОВО СТТРОИТЕЛСТВО.ПРОБЛЕМА Е ЧЕ ЕДНАТА СТАЯ Е С ОСОБЕННА ФОРМА И СЕ ЗАТРУДНЯВАМ КАК ДА НАПРАВЯ РАЗПРЕДЕЛЕНИЕТО.ИСКАМ ДА ОФОРМЯ КУХНЯ КОЯТО ДА ОТДЕЛЯ С БАР-ПЛОТ ОТ ХОЛНАТА ЧАСТ.А АКО МОГА В НЯКОЕ ЪГЪЛЧЕ ДА СЛОЖА МАЛКА СПАЛНЯ ТИП''ПРИСТА'' ЩЕ Е НАПРАВО СУПЕР.ЩЕ СЕ РАДВАМ АКО МИ ПОМОГНЕТЕ С ИДЕИ.ЕТО СХЕМА НА ЖИЛИЩЕТО(НЕ Е ПРОФЕСИОНАЛЕН ЧЕРТЕЖ НО МИСЛЯ ЧЕ ВЪРШИ РАБОТА)
АПАРТАМЕНТА Е В ГРУБ СТРОЕЖ
АПАРТАМЕНТА Е В ГРУБ СТРОЕЖ
Прикачен файл
СКИЦА.JPG (19.03 KиБ) Видяна 8025 пъти

