Здравейте,
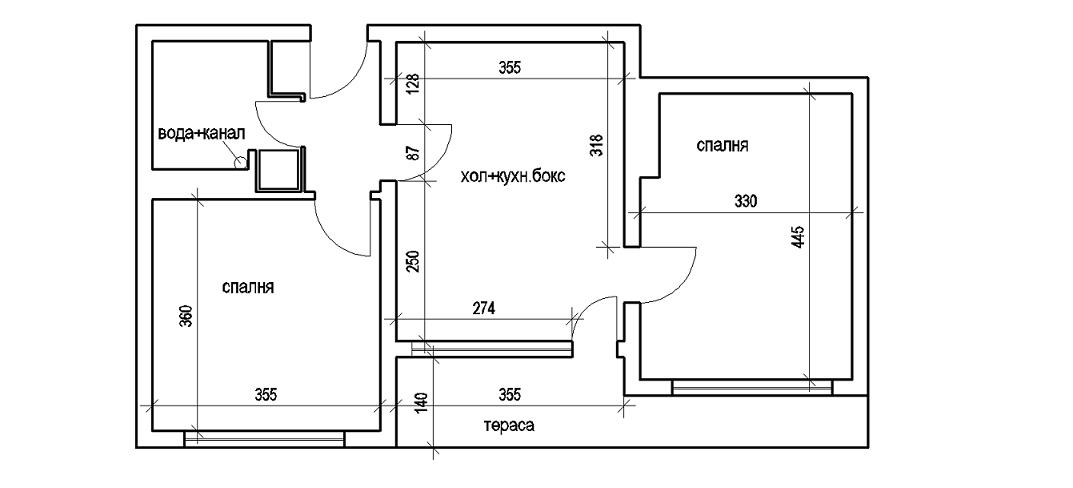
Купихме апартамент, който е двустаен, преходен. Кухнята ще стане спалня и за сметка на това в хола трябва да се обособи кухн. бокс. Има голяма тераса, но не искам да я приобщавам, тъй като е източна и пред нея има много зеленина. С две думи това е най-хубавото от целия апартамент. Имам нужда от помощ за разпределението в хола. Давам и скица с размери. А и много ми се иска вратата за преходната спалня да я "замаскирам" по някакъв начин. Видях нещо с етажерка, която се движи по релси на тавана... или пък да оцветя цялата стена, барабар с вратата в някакъв цвят, или пък там да се направи кухнята и в нея да се "вгради" вратата. Просто ми трябва помощ
Купихме апартамент, който е двустаен, преходен. Кухнята ще стане спалня и за сметка на това в хола трябва да се обособи кухн. бокс. Има голяма тераса, но не искам да я приобщавам, тъй като е източна и пред нея има много зеленина. С две думи това е най-хубавото от целия апартамент. Имам нужда от помощ за разпределението в хола. Давам и скица с размери. А и много ми се иска вратата за преходната спалня да я "замаскирам" по някакъв начин. Видях нещо с етажерка, която се движи по релси на тавана... или пък да оцветя цялата стена, барабар с вратата в някакъв цвят, или пък там да се направи кухнята и в нея да се "вгради" вратата. Просто ми трябва помощ
Прикачен файл
APARTAMENT TET3.JPG (42.07 KиБ) Видяна 7585 пъти
