Водни помпи, хидровори, ВИК, канали зация и др.
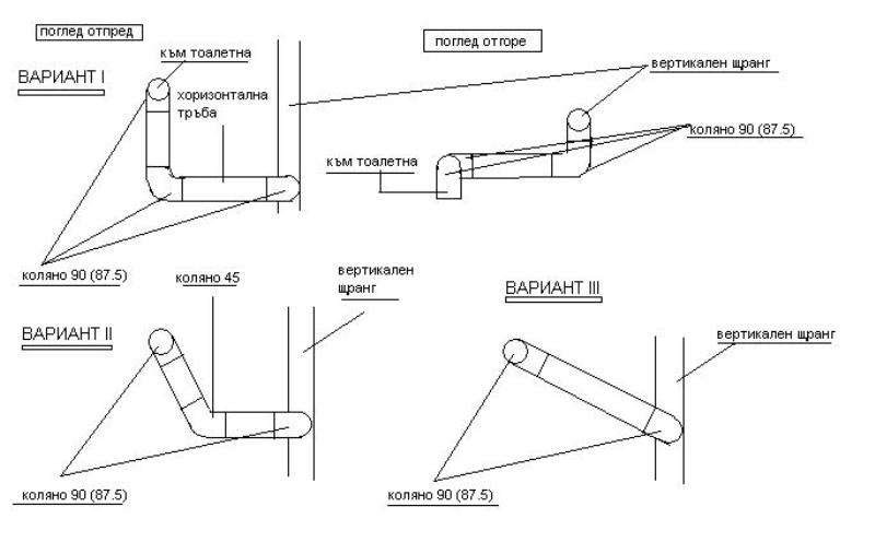
Здравейте на всички от форума. Изхода/входа на тоалетната ми е в единият ъгъл и искам да я преместя в средата на стената. Прегледах схемата за монтаж на канализация от сайта и изчетох всичко от форума. Така или иначе имам притеснения относно канализацията дали няма да се запушва и дали наклона не е голям. :?: Колената, които мога да сложа са 90 (87.50) градуса, така че тръбата да остане скрита в стената. Прилагам три схеми (варианта) според вас кой вариант е най-удачен и евентуално защо? Благодаря ви предварително!

Прикачен файл

shema_trybi_toaletna.JPG
shema_trybi_toaletna.JPG (38.44 KиБ) Видяна 4148 пъти
hkoko - специалист
Ако има начин да замениш всички колена с дъги от 45градуса е най-добре.Ако нямаш такава възможност -схема 3 е за предпочитане.
Благодаря ти за отговора. И аз съм се спрял на вариант III и ми се искаше да сложа 2 дъги по 45°, но тръбата излиза навън от стената и трябва да правя кутия за да я скрия, но този вариант не ми допада. Разстоянието от център до център (вход-изход) е около 45 см, а наклона около 25°.
kaltchevmg - специалист
Първо да уточня че не съм специалист по канализация. Но съм чувал че големия налклон не е за препоръчване. Аргумента в защита на това е че бавната вода(с минимален наклон) прекарва отлагания докато бързата ги подминава. Разглеждал съм канализацията на един от ваканционните селища на "Клуб Медитиране" разположен на една полегата тераса. Забелязах, че навсякъде са дали малки наклони към хоризонталата въпреки, че на места е доста по удобно да са много по вертикални и къси.
keke25 - помощник
Разстоянието ти е малко,а тръбата ти е ф 110,смело вариант 3.Няма да имаш проблеми. :wink:

Тема "коя схема за канализация да избера?" | Включи се в дискусията:


Сподели форума:

Бъди информиран. Следвай "Направи сам" във Facebook:

Намери изпълнител и вдъхновения за дома. Следвай MaistorPlus във Facebook: