Водни помпи, хидровори, ВИК, канали зация и др.
Liubo3 - специалист
Здравейте.
Правя ремонт на банята и понеже е тясна реших да закупя структура за вграждане с цел да я вградя във стената. Отвора е готов но когато стигнах до монтажа на самата структура запънах. Въпросът ми е на каква височина от пода трябва да са шпилките (окачвачите) за тоалетната чиния при завършен под.
Благодаря предварително :)
nilro - специалист
На някои структури на металната рамка има маркирано 1m.Огледай за такъв маркер.
Bechev - специалист
Те са фиксирани на самата структура.

Прикачен файл

s.jpeg
s.jpeg (35.04 KиБ) Видяна 4865 пъти
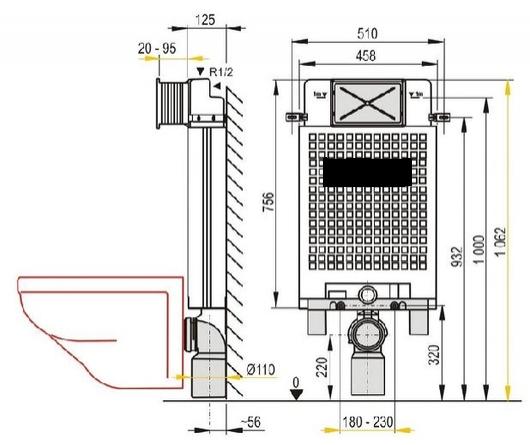
Каналски - специалист
Зависи от конкретният модел конзолно тоалетно седало виж примерна картинка и търси размера за това което мислиш да монтираш. Но ако всички в къщи сте по 1.90-2.00m високи може да помислиш да го монтираш с 5cm по-високо или там някъде или пък обратно ... Прегледай и другите размери дали си пасват, най-добре вече да е купено седалото и лично да провериш как са размерите.

Прикачен файл

KWC.JPG
KWC.JPG (27 KиБ) Видяна 4814 пъти

Тема "Монтаж на структура за вграждане ?" | Включи се в дискусията:


Сподели форума:

Бъди информиран. Следвай "Направи сам" във Facebook:

Намери изпълнител и вдъхновения за дома. Следвай MaistorPlus във Facebook: