• 1
  • 5
  • 6
  • 7
  • 8
  • 9
  • 10
Напишете въпрос свързан със санирането.
ivhand - специалист
Антоне здравей
много ти благодаря за отговорите, ти без да искаш отговориха на много мои въпроси. Иакам да те питам още нещо.Имам едноетажна къща на груб строеж. Мисля да сложа външна топлоизолация7 цм стиреопор, има ПВЦ дограма с К стъкло и аргон. За тавана разбрах- да сложа гиппсокартон , тънка вата, а над плочаята найлон и фибран(така ли е ?). Стените отвътре се колебая между гипсокартон и мазилка, но по това което прочетох нама значение и в двата случая няма нужда от пароизолация . Ако нещо греша до тук, кажи ми .
Та въпроса ми е: в проекта беше заложено да се сложи топлоизолация и хидроизолацияпод бетона на периферията на външните стени , но стрителя ме убеди че не е фатално. Питането ми е до колко това е"нефатално" и ако е фатално, какво мога да направясега , когато вече имам готов под?

Благодаря ти много предврително! :)
AntonBM - специалист
По ситуацията и тълкуванието и ти не грешиш.
Не схванах обаче добре въпроса ти. До колкото разбрах ти имаш външна топлоизолация 7 см, но тя свършва някъде близо до плочата и не слиза до земята. Под земята няма изолация. Ако е така трябва да уточниш колко се разминава топлоизолацията с котата на пода в стаята ти. Термомоста в тази зона се покрива с минимум 80 см. Т.е. ако изолацията слиза 80 см. под котата на пода, всичко е на ред. Ако обаче не е така в тази зона имаш термомост с линеен коефициент 0,8 (голям е).
Най-добре начертай някакъв схематичен разрез, за да разбера по-точно каква е ситуацията.
8180 - майстор
Колега ivhand,
Не е лошо да покажеш какво имаш или се каниш да направиш и нагоре - до покрива, че Антон се съсредоточи на конкретния въпрос, но допускам и нагоре трябва да се уточнят някои неща.
ivhand - специалист
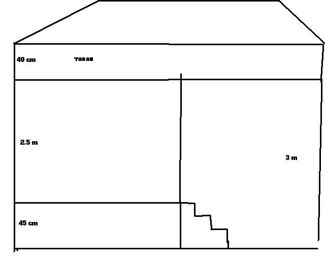
Сградата е на две нива, 2 от помещенията са на кота нула, а останалите са на кота +0.45 ( не зна,м дали се изразих правилно , но плочата им е на 45 см над плочата на на трите) . Аз не разбирам от външна изолация но предполагам че се слага до земята(или греша)Външната изолация тепърва ще се полага, сградата е на груб строеж. Ако е така на част от помещенията (които са на кота 0) ще имам изолация до плочата респективно земаята, а при останалитре ( кооито са на кота + 0.45) изолацията ще стига 45 см под плачта им .Що се отнася за нагоре- над горната плоча - там е необитаемо таванско помещение с площ 136 м, , 40 см надзид, 3 кв. метра прозорци, покрива е керемиди под тях , наилон и под него талашитени плоскости, в бъдеще мисля да слагам вата между греите но това не е сигурно, зависи от финансите :) надявам се че ви отговорих ако не ще снимам проекта и ще го кача
ivhand - специалист
Колеги , каде се изгубихте?
Моля Ви , кажете си мнението по моя казус? Сигурно е излязла някоя по - интересна тема, но все се надявам, че ще намерите малко време да драснете няколко реда по моя въпрос :)
8180 - майстор
Дай някаква скица, че не пишеш много разбрано.
Формулирай си въпросите отделно от собствените мнения за да ти се отговори кратко и ясно или напиши - смятам така - правилно ли е?
Сега се мешат - хидроизолация, топлоизолация, пароизолация, на земята, на тавана. Кое е готово, кое не.
То и питането не е баш за тази тема, май.
ivhand - специалист
Здравейте, пращам схема (Схема 1)за да се разбере за какво иде реч. Къщата е на груб строеж и няма никааква изолация.на външните стени ще се слага външна толоизолация- 7 см стиропор, въпроса ми е каак да изолирам пода и тавана. По думите на Антон върху таванската плоча слагам найлон и върху него фибран ( а колко см са достатъчни?) За пода по това което празбрах от отговора на Антон е че външната изолация трябва да стига 80 см под плочата. Вярноли е? Ако е така как се спира просмукването на вода от почвата към топлоизолационните плочи?
имам и други въпроси:
1 възможно ли е да заменя изолацията върху таванската плоча с вата между гредите на покрива, която да се съединява с изолацията на външните стени.Това което ме притеснява е че гредите няма как да ги изолирам
2 възможно ли е вместо фибран върху таванската плоча да сложа кръстообразно два реда вата
3 при вариантите при които топлоизолацията се поставя върху таванската плоча, външната стена, която е изолирана само отвън , не действа ли като термомост (схема 2) топлоизолацията е показана със синчо
4 Последно как да предотвратя топлинните загуби от пода?
Прикачен файл:
shema 2.JPG
shema 2.JPG (15.08 KиБ) Видяна 12603 пъти
Прикачен файл:
shema 1.JPG
shema 1.JPG (19.59 KиБ) Видяна 12603 пъти
надявам се че съм се изразил правилно. Благодаяя за отговорите Ви предварително
Последна промяна от ivhand на пет апр 01, 2011 11:11 am, променено общо 1 път.
8180 - майстор
По въпросите:
1. Възможно е. Гредите можеш да ги изолираш с втори слой "на кръст" + някаква конструкция, пароизолация и после да затваряш. Така ще постигнеш и по-дебела изолация - тук и 10-20 см да сложи става. Зависи и какво има на покрива сега.
Трабва да отчетеш, че в този вариант, ще имаш т.н. "топъл покрив" - ще топлиш и тавана.
2. За разлика от т.1, тук имаме т. н. "студен покрив", което е малко по-икономично и по-лесно, ако няма да ползваш тавана. Материалът, като ТИ няма особено значение - ако е вата - под нея пароизолация. Дебелината като т.1.
3. Правилно отбелязваш проблема. Решението е да сложиш ТИ на ВСИЧКИ вертикалните стени или поне на част (40-50см) във височина - всичките са термомостове. Като се отчете това малко става "на кантар" т.1 или т.2
4. Тук вариантите са много, но и задачата е отговорна - трябва да е здраво и съобразено с останалото до ниво "чист под". Няма го във въпроса, но по-горе питаше.
И според мен е задължително да топлоизолираш основите - ако не е чак на 80см., поне докъдето можеш.
Въпросът с хидроизолацията е отделен и също задължителен - има варианти във форума, основно мазани и рулонни. Най-добре, според мен това да се направи преди ТИ. Отделно да се отведат добре повърхностните води настрани от основите.
Успех!
ivhand - специалист
Благодаря ти 8180,
отговорите ти са изчерпателни. . САмо не разбрах какво имаш в предвид в точка 4 , може ли по - подробно като за начинаещ. Благодая
8180 - майстор
ivhand написа:
САмо не разбрах какво имаш в предвид в точка 4 , може ли по - подробно като за начинаещ.
Еми, зависи с каква височина разполагаш.
Някои слагат фибран, други плаващи подове с посипки, трети редят итонг, олекотени бетони и т.н.
Затруднявам се да предпочета нещо конкретно, но височината, крайното покритие, възможността за съхнене (при бетоните) - всяко има влияние върху избора.
Не си избрал подходящата тема - малко колеги я четат. Огледай се, намисли нещо и пиши - може да я обособим отделно.
За подовете има отделен раздел - погледни и там.
  • 1
  • 5
  • 6
  • 7
  • 8
  • 9
  • 10

Тема "Пароизолация" | Включи се в дискусията:


Сподели форума:

Бъди информиран. Следвай "Направи сам" във Facebook:

Намери изпълнител и вдъхновения за дома. Следвай MaistorPlus във Facebook: