• 1
  • 2
Изпратете снимка на всички ваши стандартни и нестандартни решения.
iscreta - напреднал
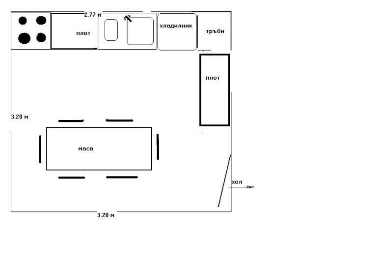
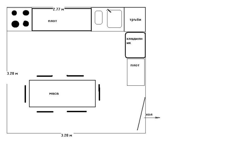
Бихте ли ми дали съвет коя кухня е по практична

Прикачен файл

kuhnq 1.JPG
кухня 1
kuhnq 1.JPG (21.35 KиБ) Видяна 8425 пъти

Прикачен файл

kuhnq 2.JPG
кухня 2
kuhnq 2.JPG (21.04 KиБ) Видяна 8425 пъти
Любо - специалист
тази според мен е защото хладилника не пасва насреща ше загубиш визия .пък и е нормално да е на късата страна
iscreta - напреднал
Благодаря за мнението ако имате други предложения ще ви бъда благодарна
velsi - Почетен майстор
Според мене втората. Но аз бих разменил местата на хладилника и малкия плот.
iscreta - напреднал
Всъщност хладилника ще влезе малко назад защото там е гипсокартон и килер отзад понеже стената е само 50 см и ще стърчи хладилника а зад малкия плот има комин и няма как да се бутне назад
8180 - майстор
В тази кухня само през хола ли се влиза?
На лявата стена какво е - прозорец, врата балкон?
А на долната?
Тия тръби вярно ли са нарисувани?
Дай малко повече инфо - кое може и не може да се мести (вода, канал, отдушник), че нещо и двата вар. не ме кефят, а и май сериозно нещо е преустройвано или сбъркано в общата планировка.
Matchless - специалист
Според мен първата от функционална гледна точка. Когато отваряш хладилника нямаш достъп до мивката.
n_a - МАЙСТОРИЩЕ
Answers: 1
Matchless написа:
Според мен първата от функционална гледна точка. Когато отваряш хладилника нямаш достъп до мивката.
Хладилниците много лесно стават с ляво или дясно отваряне.
iscreta - напреднал
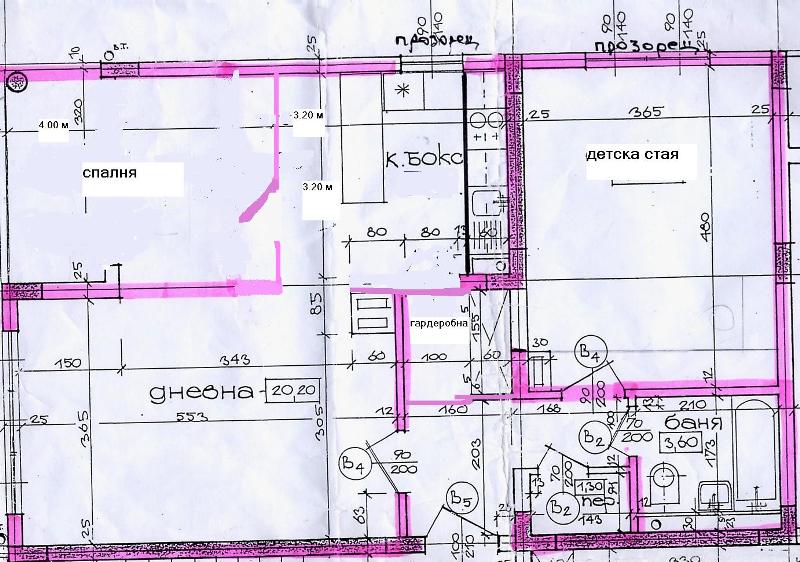
Това е схемата на апартамента след преустройство и обединяване на терасата пред спалнята и направихме единия коридор на гардеробна с плъзгащи врати

Прикачен файл

Creat0001.JPG
Creat0001.JPG (95.08 KиБ) Видяна 8188 пъти
Matchless - специалист
n_a написа:
Matchless написа:
Според мен първата от функционална гледна точка. Когато отваряш хладилника нямаш достъп до мивката.
Хладилниците много лесно стават с ляво или дясно отваряне.
Както и да го отвориш все ще пречи.
  • 1
  • 2

Тема "коя от двете кухни е по практична" | Включи се в дискусията:


Сподели форума:

Бъди информиран. Следвай "Направи сам" във Facebook:

Намери изпълнител и вдъхновения за дома. Следвай MaistorPlus във Facebook: