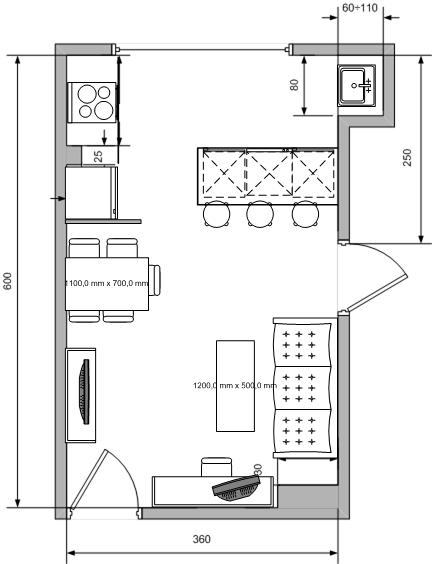
Здравейте приятели, позволявам си да се бръщам така към вас, защото отдавна се ровя по форума и вече имам чувството,че ви познавам.Тайничко завиждах на всички, които имат какво да напишат,с какво да се похвалят, но ето че дори и малко ненадейно за мен мога да се присъединя към вас.Обаче превръщането на тази стая която качвам като картина се оказа задача с повишена трудност за мен.Идеята е че трябва да се набутат всички кухненски уреди,вкл. и съдомиялна, да се оформи и нещо като дневна в същото помещение,с холна гарнитура и маса, която да става за хранене.Постарала съм се да ви улесня давайки всички размери(поне за каквото съм се сетила де), водата е в малката нишичка в дясно, тръбите за парното са на стената в ляво,но мисля да не слагам радиатор,не давам и размерите на прозореца,защото още не е сложен и ще се прави според проекта за разположението на шкафовете и уредите.Много ще се раздвам ако някой има идея и помогне, защото аз наистина не мога да се справя.Благодаря предварително.


