Здравейте!
От доста време присъствам в сайта и форума като четец.
Ако кажа какво мисля за него, ще си кажете, че се подмазвам
. Истината е, че това е най-толерантният, добронамерен и приятелски форум, посещаван от мен.
За идеите, пък, ви свалям шапка.
Ето какъв е моят проблем:
Строят ни апартамент, тип ателие, със скосявания (в най-ниската си част - 1.50 м.) в едната стая. Застроената му площ е едва 48 кв.м. На тях трябва да разположа следните помещения, така, че да са удобни за семейство с второкласничка:
Детска стая;
Стая или кътче за заслужен отдих на възрастните;
Кухня и помещение за посрещане на гости и за пребиваване през деня.
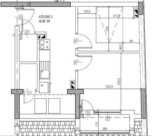
Ето първоначалният вид на ателието:

След няколко дни мислене, реших да пробвам да оползотворя по-рационално коридорите:

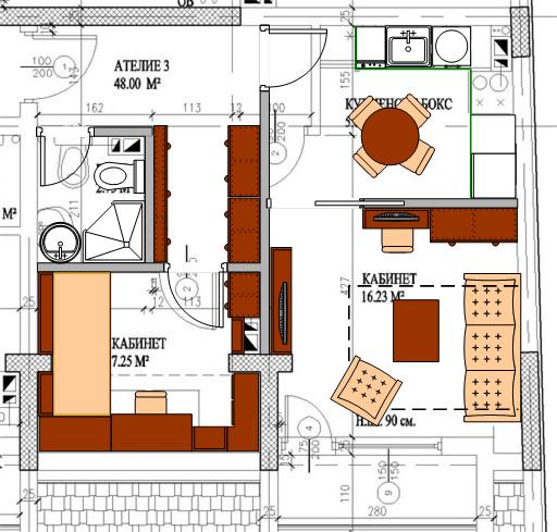
Накрая ми хрумна нещо съвсем друго – да „изтъня” помещението за баня и тоалетна, като го разделя на две и да долепя до него кухнята, с което да освободя пространство за цяла спалня:

Така бившата детска се превърна в кухня-дневна.
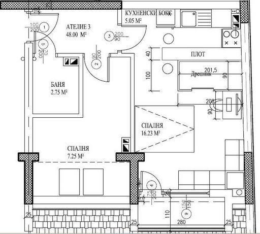
Ето и още един вариант в тази насока:

Така се намери и място за гардероби, което беше съществен проблем при предишното разпределение.
Сега имам една последна мечта - да се намери място за маса за хранене.
Възможно е амбициите ми да са неосъществими.
Ако все пак темата ви се стори интересна и имате някакви идеи, очаквам ги с нетърпение.
Предварително благодаря
Поздрави!
От доста време присъствам в сайта и форума като четец.
Ако кажа какво мисля за него, ще си кажете, че се подмазвам
За идеите, пък, ви свалям шапка.
Ето какъв е моят проблем:
Строят ни апартамент, тип ателие, със скосявания (в най-ниската си част - 1.50 м.) в едната стая. Застроената му площ е едва 48 кв.м. На тях трябва да разположа следните помещения, така, че да са удобни за семейство с второкласничка:
Детска стая;
Стая или кътче за заслужен отдих на възрастните;
Кухня и помещение за посрещане на гости и за пребиваване през деня.
Ето първоначалният вид на ателието:

След няколко дни мислене, реших да пробвам да оползотворя по-рационално коридорите:
Накрая ми хрумна нещо съвсем друго – да „изтъня” помещението за баня и тоалетна, като го разделя на две и да долепя до него кухнята, с което да освободя пространство за цяла спалня:
Така бившата детска се превърна в кухня-дневна.
Ето и още един вариант в тази насока:
Така се намери и място за гардероби, което беше съществен проблем при предишното разпределение.
Сега имам една последна мечта - да се намери място за маса за хранене.
Предварително благодаря
Поздрави!
Прикачен файл
9111.jpg (47.92 KиБ) Видяна 8314 пъти
Прикачен файл
at11.jpg (52.25 KиБ) Видяна 8314 пъти
Прикачен файл
at12.jpg (44.46 KиБ) Видяна 8314 пъти