• 1
  • 2
Изпратете снимка на всички ваши стандартни и нестандартни решения.
Margo - напреднал
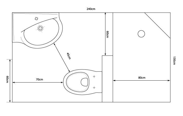
Бих те ли изказали мнение по тази моя идея за баня.Не съм специалист и се чудя в такова малко пространство 2м*1,5м как да си отделя място за къпане.По проект мивката си е по средата отдясно, но става много нагъчкано и нито мога да сложа душ-кабина,нито да отделя душово пространство с праг.Затова мисля да я преместя от лявата страна,както съм нарисувала.Рисунката сега я направих,старах се да е мащабирана.Според мене се получава,но добре е някой разбиращ да каже как му изглежда.Благодаря много!

Прикачен файл

Image001.JPG
Image001.JPG (35.23 KиБ) Видяна 9782 пъти
bluelemon - специалист
Ами като гледам при мен положението е горе долу същото. Купувай си списанийца CasaBrava ili CasaViva там квото беше. Разглеждай в интернет и т.н. Има много свежи идеи. Като краднеш по нещо от тук и там става работата. Виж аз как съм си решил проблема и ако има нещо питай. Почти съм я завършил банята и мисля че добре стана. Врата е плъзгаща, вградено казанче в стена от кнауф на височина около 1,30 и нагоре стъкло. Тъй като констуркцията на казанчето е за пред стена допълнително виках заварчик да ми изгради конструкция от стоманени кутии хванати с анкери за пода и стената. Отзад се обособява мястото за къпане. Може да се помисли и за поддушово корито или душ-кабина. Всичко зависи от средствата.
Ето виж това е 3Д проект http://www.napravisam.bg/forum/files/sss_904.jpg

Прикачен файл

bania.jpg
bania.jpg (22.96 KиБ) Видяна 9761 пъти
Margo - напреднал
Хубав ти е проекта,но твоята баня е подълга и по-тясна.На мене ми остават само 60 см за душово пространство ширина,а при тебе е 80 см.Затова си мисля,че в моя случай душ-кабина е по-добре.
bluelemon - специалист
Ууупс!
Последна промяна от bluelemon на чет сеп 21, 2006 3:48 pm, променено общо 1 път.
bluelemon - специалист
Е аз ти давам пример само. Мисля че може да се помисли и да се направи нещо готино. При мен е по кофти че е по дълга и по тясна банята. Пък и ти нищо не казваш. Ново ли е, фиксирани ли са мивката и тоалетната сифона и т.н. Иначе проекта ти е добър само ако има възможност вратата да се отваря навън или да е плъзгаща.
gladiatormaximus - специалист
не изкам да се правя на голям разбирач, ама има ъглови мивки, които доста ще ти помогнат - не са супер удобни и най вероятно ще трябва да имаш и ъглово огледало, но така ще ти се освободи място в средата
gladiatormaximus - специалист
"искам" се пише със С разбира се просто са близо (на фонетична)

Освен това ако на мивката батерията е комбинирана със телефонче, направо си решаваш проблема с ъглова мивка
Не знам защо искате душ кабина - според мен за душкабина банята трябва да е мноого по-голяма - душкабината е за големи бани и за маки хора също - аз съм 1.85 и ако имам душ кабина 80х80 няма да мога да се наведа вътре или ще счупя стуклото със задник

Банята е супер важна за да се претупа

аз например исках да имам вана и направих на powerpoint проект, за да видя как ще изглежда - само ще ти кажа че при мен беше още по-забито, защото банята 2.60х0.80 (да-а-а 0.80) като в 2.60 трябва да се отваря и врата.

Но след качественото ми проектиране сега имам мивка и вана -малко повечко потърсих вана на 1.20 и във ванта се влиза от тясната й страна, но това беше единствения вариант.

Душкабина или корито нямаше да са от полза в тясното, а сега поне остава сухо когато се къпем - ето снимки - дори и без да има завеси и други мухълоразвъждащи аксесоари

в нишата вдясно е тоалетна, която отгоре на всичко е с биде (топла + студена) със супер як смесител на стената до тоалетната
Бидето е всъщност комбинирана седалка - вярно че е 150 лв, но си заслужава всеки лев - можеш да го видиш на темата биде за малка тоалетна

Прикачен файл

1.jpg
1.jpg (46.9 KиБ) Видяна 9695 пъти

Прикачен файл

2.jpg
2.jpg (50.44 KиБ) Видяна 9695 пъти

Прикачен файл

3.jpg
3.jpg (44.94 KиБ) Видяна 9695 пъти

Прикачен файл

4.jpg
4.jpg (56.51 KиБ) Видяна 9695 пъти

Прикачен файл

5.jpg
5.jpg (42.95 KиБ) Видяна 9695 пъти
Margo - напреднал
Мерси много за отзивчивоста!Като викна майстора ще го мислим и с него,защото и аз не съм в час кое може да се променя.За ново строителство става въпрос,сложени са тръбите,замазано е, но ще къртя и ще оправям доколкото е възможно.Вратата ще е хубаво наистина да се отваря навън,но не знам дали може да се променя сега.Дали ще мога нормално да сложа душ-кабина,без да се гъчкам ми беше проблема.На рисунката изглежда,че може,ама като не съм го виждала.
leonardo_vd - модератор
Margo написа:
Мерси много за отзивчивоста!Като викна майстора ще го мислим и с него,защото и аз не съм в час кое може да се променя.За ново строителство става въпрос,сложени са тръбите,замазано е, но ще къртя и ще оправям доколкото е възможно.Вратата ще е хубаво наистина да се отваря навън,но не знам дали може да се променя сега.Дали ще мога нормално да сложа душ-кабина,без да се гъчкам ми беше проблема.На рисунката изглежда,че може,ама като не съм го виждала.
А защо не сложиш плъзгаща врата ?
ValBo - специалист
Извинявам се, че се меся в чужда тема, но много ме интересува плъзгащата врата за баня и тоалетна.
И аз искам да си сложа, но ме притеснява херметичността.
Спират ли парата и миризмата след ползване на бяната или тоалетната?


П.С. Bluelemon, ако не се лъжа сме колеги, нали?
  • 1
  • 2

Тема "Баня - проектиране" | Включи се в дискусията:


Сподели форума:

Бъди информиран. Следвай "Направи сам" във Facebook:

Намери изпълнител и вдъхновения за дома. Следвай MaistorPlus във Facebook: