Здравейте, Дами и Господа!
Доста неща прочетох тук, и виждам че има страшно много полезна информация, за което благодаря на всички!
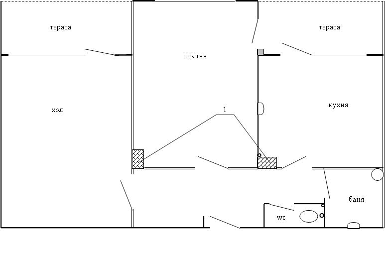
Бих искал да Ви помоля за идеи за преустройство на по-долу показания апартамент!
Благодаря, предварително!
Доста неща прочетох тук, и виждам че има страшно много полезна информация, за което благодаря на всички!
Бих искал да Ви помоля за идеи за преустройство на по-долу показания апартамент!
Благодаря, предварително!
Прикачен файл
Shema.JPG (24.01 KиБ) Видяна 4232 пъти
