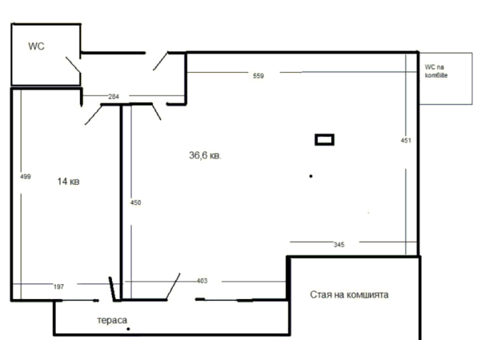
Здравейте колеги! Извинявам се първо ако съм нарушил някое правило на форума, но съм нов. Та сдобих се с ново жилище- ново стрителство. Искам да преградя голямата стая, която е посочена на схемата ми и да направя от нея 2 спални. Може ли някой по-вещ в занаята да ми даде идея за преграждане. Вик-то е в по-малката стая, като има възможност за сега да се изведе и в голямата(в съседство с тоалетната на съседа). Благодаря предварително!
Прикачен файл
чертеж.PNG (41.93 KиБ) Видяна 7964 пъти
Последна промяна от ORI0N на ср мар 19, 2008 11:41 am, променено общо 1 път.
